14.4万円
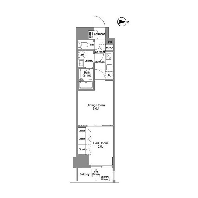
1DK
種別 マンション
専有面積 31.32㎡
おすすめ
ポイント
■インターネット無料(ファイバーゲートに限る)
築年月 | 2024年11月 |
---|---|
構造 | 鉄筋コンクリート造 |
所在階 | 11階建ての4階 |
向き | 東 |
バルコニー面積 | - |
駐車場 | なし |
入居可能日 | 相談 |
賃貸借の種類 | 普通賃貸借 |
契約期間 | 2年 |
共益費・管理費 | 8,000円 |
敷金 | 14.4万円 |
礼金 | 144,000円 |
保証金 | - |
償却金 | - |
更新料 | 更新後賃料:1ヶ月 |
保証料等 | 要加入(2年16550円) |
保証会社補足 | エポスカード(RP) 保証料:賃料等の50%(最低2万)、月額保証料:賃料等の1%(更新料無) |
取引態様 | 媒介 |
情報更新日 | 2025年10月21日 |
次回更新予定日 | 2025年10月27日 |
設備・特記
《設備》オートロック/TVモニター付きインターホン/防犯カメラ/エアコン/バス・トイレ別/浴室乾燥機/独立洗面台/温水洗浄便座/室内洗濯機置場/エレベータ/宅配ボックス/駐輪場/インターネット無料
《物件の特徴》ペット相談可
《その他一時金》鍵交換代:33000円 / 清掃費:44000円 / エアコン清掃費:11000円
《その他月額費用》-
備考
《その他》■指定保証会社利用必須※一部法人契約除く・敷金1ヶ月積増■ペット飼育の場合:敷金1ヶ月積増※ペット飼育時使用細則遵守■楽器演奏不可、事務所・SOHO利用不可■解約時室内清掃費及びエアコンクリーニング費用借主負担■駐輪場初回登録料:1区画6,600円(税込)、2〜78区画:3,300円(税込)、月額使用料は無料■解約予告2ヵ月前
※現状と異なる場合は、現状を優先させていただきます。取引態様の欄に「媒介」と表示された物件は「仲介物件」です。ご成約の際には仲介手数料を申し受けます。