■浴室乾燥機交換/クロス・フローリング張替/留学生相談可

お気軽にお問い合わせください!
物件情報・周辺環境・契約手続きについてなどお気軽にお問い合わせください。
設備・条件
|
|
---|---|
|
|
|
|
|
|
|
|
|
|
|
|
|
|
物件概要
物件種別
部屋種別 | マンション | ||
---|---|---|---|
建物名称 | コンフォリア春日富坂(1007) | ||
所在地 | 東京都文京区春日1丁目 | ||
築年月 | 2008年2月 | 階数 | 地下1階・地上12階建ての10階 |
建物構造 | 鉄筋コンクリート造 | 総戸数 | 106戸 |
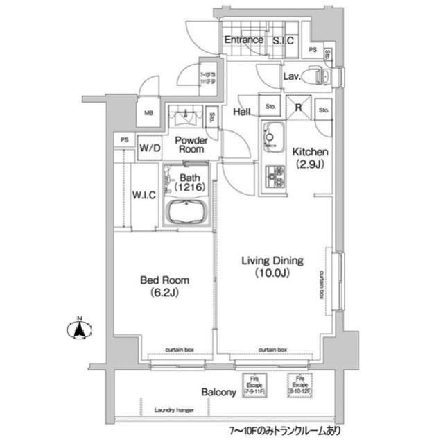
間取り | 1LDK(LDK12帖 洋5.9帖) | 専有面積 | 42.94㎡ |
向き | 北 | バルコニー面積 | - |
その他 | - |
費用
賃料 |
21万円
初期費用の確認をする
|
共益費 | 10,000円 |
---|---|---|---|
礼金 | - | 敷金 | 21万円 |
保証金 | - | 償却金 | - |
その他一時金 | 鍵交換代:33000円 / 清掃費:39600円 / エアコン清掃費:11000円 | ||
その他月額費用 | - | ||
住宅保険 | 要加入(2年16550円) | ||
保証会社 | 必須 | ||
保証会社補足 | エポスカード(RP) 保証料:賃料等の50%(最低2万)、月額保証料:賃料等の1%(更新料無) | ||
更新料 | 更新後賃料:1ヶ月 | 更新事務手数料 | - |
契約条件
貸家契約区分 | 普通賃貸借 | 契約期間 | 2年 |
---|---|---|---|
入居可能日 |
2025年10月10日予定
空室状況を確認をする
|
引渡時期相談内容 | - |
フリーレント | - | ||
クレジットカード決済 | - |
駐車場
駐車場 |
なし
駐車場について質問する
|
||
---|---|---|---|
駐車場契約形態 | - | ||
駐車場備考 | - | ||
バイク置き場 | - | ||
駐輪場 | - |
備考
その他 | ■礼金ゼロ1年以内解約時賃料1か月分違約金 ■指定保証会社利用必須※大手法人契約時敷金2か月 ■ペット飼育敷金1ヶ月積増※使用細則等遵守 【店舗条項】 入居者は、本物件の1階が東京都認証保育園を予め承諾するものとします。 | ||
---|---|---|---|
関連リンク | |||
取引態様 | 媒介 | 管理コード | 3615241 |
情報登録(更新)日 | 2025年10月2日 | 次回更新予定日 | 2025年10月8日 |
取扱店舗

ピタットハウス武蔵境店
株式会社東洋リーベスト
- 交通
- JR中央線 『武蔵境駅』 南口より 徒歩30秒 駐車場有
- 営業時間
- 10:00 〜 19:00
- 定休日
- 毎週水曜日・夏季休業・8/12から8/20まで
ピタットハウスでは信頼されるサイトを目指して、物件情報の精度向上に努めています。
掲載物件に誤りがある場合は
こちら からご連絡ください。現状と異なる場合は、現状を優先させていただきます。
取引態様の欄に「媒介」と表示された物件は「仲介物件」です。ご成約の際には仲介手数料を申し受けます。
生活情報
文京区の暮らしデータ
文京区は、東京23区の中心部に位置し、由緒ある寺社、歴史を語る建造物等が数多く残るほか、江戸の大名屋敷庭園の面影を残す庭園もあります。また、明治時代には東京大学をはじめ多くの学校がつくられ、さらに、森鴎外、夏目漱石、樋口一葉、石川啄木など多くの文人ゆかりの地であり、緑豊かな文化の薫り高いまちとして発展してきました。
基本データ
市区役所所在地 | 文京区春日1-16-21 |
---|---|
公式ホームページURL | https://www.city.bunkyo.lg.jp/ |
総人口 | 240,069人 |
人口増減率(2015年/2020年) | 109.3% |
地域のおすすめ情報ブログ
一覧を見る
-
ロケ地巡り3こんにちは♪ピタットハウス御茶ノ水店です!今回はロケ地巡り第3弾!2011年に放送されたドラマ「JIN−仁−」のロケ地です。ちょ...続きを読む
-
一足早く紅葉の名所へこんにちは!ピタットハウス御茶ノ水店です。今回は紅葉の時期におすすめのスポット!小石川後楽園をご紹介いたします!ここは、後楽園駅...続きを読む
-
すずめの戸締り 聖地巡礼♪③皆さんこんにちは♪ピタットハウス御茶ノ水店です!本日は「スズメの戸締り」聖地巡礼第3弾をお届けします♪御茶ノ水付近に映画の舞台と...続きを読む
-
日本学校教育発祥の地 湯島聖堂皆さんこんにちは♪ピタットハウス御茶ノ水店です!本日は、「湯島聖堂」をご紹介いたします♪こちらは、御茶ノ水駅より徒歩2分の場所に...続きを読む