前へ
次へ
前へ
次へ
マンション

ザ・グラヴィティ新宿(203)

26.8 万円
共益費 15,000
26.8万円
-
間取り
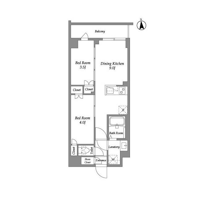
2LDK
専有面積
44.51㎡
所在階
5階建ての2階
向き
西
  • アイコン: 住所 東京都新宿区百人町1丁目
  • アイコン: 交通 西武新宿線 「西武新宿駅」 徒歩3分 / JR山手線 「新大久保駅」 徒歩6分
簡単無料
アイコン: お電話 0037-6001-08163
IP電話ご利用のお客様 : 0422-39-3966
ピタットハウス
武蔵境店
point!
◆礼0◆フリーレント1ヶ月(賃料のみ)
お気軽にお問い合わせください!
簡単無料
お気軽にお問い合わせください!
物件情報・周辺環境・契約手続きについてなどお気軽にお問い合わせください。

設備・条件

建物・立地
  • エレベータ
  • 宅配ボックス
  • 駐輪場
  • 常時ゴミ出し可能
  • バイク置場
通信
  • インターネット無料
セキュリティ
  • オートロック
  • TVモニター付きインターホン
  • 防犯カメラ
部屋設備
  • 室内洗濯機置場
冷暖房
  • エアコン
キッチン
  • システムキッチン
バス・トイレ
  • バス・トイレ別
  • 浴室乾燥機
  • 追い焚き風呂
  • 独立洗面台
  • 温水洗浄便座
特徴
  • 新築
  • ペット相談可
  • フリーレント1ヶ月 賃料のみ

物件概要

物件種別

部屋種別 マンション
建物名称 ザ・グラヴィティ新宿(203)
所在地 東京都新宿区百人町1丁目
築年月 2025年10月 階数 5階建ての2階
建物構造 鉄筋コンクリート造 総戸数 68戸
間取り 2LDK(LDK12.2帖 洋4.4帖 洋3.5帖) 専有面積 44.51㎡
向き 西 バルコニー面積 -
その他 -

費用

賃料 26.8万円 初期費用の確認をする 初期費用の確認をする 共益費 15,000円
礼金 - 敷金 26.8万円
保証金 - 償却金 -
その他一時金 清掃費:47960円 / エアコン清掃費:22000円
その他月額費用 -
住宅保険 要加入(2年16550円)
保証会社 必須
保証会社補足 レジデンシャルパートナーズ 保証料:賃料等の50%(最低2万)、月額保証・事務手数料:賃料等の1%(更新料無)
更新料 更新後賃料:1ヶ月 更新事務手数料 -

契約条件

貸家契約区分 普通賃貸借 契約期間 2年
入居可能日 2025年11月10日予定 空室状況を確認をする 空室状況を確認をする 引渡時期相談内容 -
フリーレント あり 1ヶ月 賃料のみ
クレジットカード決済 -

駐車場

駐車場 なし 駐車場について質問する 駐車場について質問する
駐車場契約形態 -
駐車場備考 -
バイク置き場 -
駐輪場 -

備考

その他 ◆指定保証会社利用必須※一部法人契約除く・敷金積増1ヶ月◆ペット飼育可(小型犬1匹または猫2匹まで)※敷金1ヶ月積増◆SOHO利用不可◆楽器演奏不可◆解約時室内及びエアコンクリーニング費用借主負担◆礼金0ヶ月※1年未満解約時違約金賃料1ヶ月分有◆フリーレント1ヶ月(賃料のみ)※1年未満解約時違約金賃料1ヶ月分有◆外国籍留学生相談可能(エポスGTN利用)
関連リンク
取引態様 媒介 管理コード 4667331
情報登録(更新)日 2025年11月7日 次回更新予定日 2025年11月13日
備考 めやす賃料:

めやす賃料とは賃料、共益費・管理費、敷引金、更新料を含み、賃料等条件の改定がないものと仮定して4年間賃借した場合(定期借家の場合は契約期間)の1ヶ月当たりの金額です。

※敷引金は、敷金の償却、保証金の償却など、預かった金額から必ず引くものをいいます。
※めやす賃料は、消費者に適切な情報を提供するための表示であり事業者に一時金を推奨するものではありません。
※めやす賃料は、実際の総支払額と異なる場合があります。詳しくは不動産会社にご確認ください。  

取扱店舗

ピタットハウス武蔵境店
ピタットハウス武蔵境店
株式会社東洋リーベスト
交通
JR中央線 『武蔵境駅』 南口より 徒歩30秒 駐車場有 
営業時間
10:00 〜 19:00
定休日
毎週水曜日・夏季休業・8/12から8/20まで
  • 近隣駐車場あり/キッズスペースあり
お電話 0037-6001-08163 無料
メール お問い合わせ
  • お問い合わせ区分

  • 内見希望日時

    第一希望

    第二希望

  • お名前

    全角
  • ご希望の連絡方法

    メールアドレス

    電話番号

    半角
    半角
  • その他ご希望等

ピタットハウスの個人情報の取り扱いについて

ピタットハウスでは信頼されるサイトを目指して、物件情報の精度向上に努めています。
掲載物件に誤りがある場合は こちら からご連絡ください。現状と異なる場合は、現状を優先させていただきます。
取引態様の欄に「媒介」と表示された物件は「仲介物件」です。ご成約の際には仲介手数料を申し受けます。

生活情報

新宿区の暮らしデータ

新宿区は、1947年3月15日に旧四谷・旧牛込・旧淀橋の3区が統合し発足しました。東京23区のほぼ中央に位置し、面積は18.22km2。23区中13番目の広さです。歌舞伎町や西新宿などの繁華街を有する一方、緑豊かな新宿御苑や、情緒ある神楽坂、住宅街の落合など様々な特色を持つ都市です。

基本データ

市区役所所在地 新宿区歌舞伎町1-4-1
公式ホームページURL https://www.city.shinjuku.lg.jp/
総人口 349,385人
人口増減率(2015年/2020年) 104.7%
新宿区の生活情報を詳しくみる

地域のおすすめ情報ブログ

一覧を見る