前へ
次へ
前へ
次へ
マンション

パークシティ中野 ザ タワー ブリーズ(1804)

22 万円
共益費 20,000
22万円
33万円
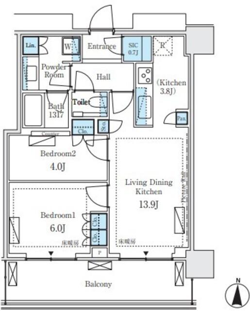
間取り
1LDK
専有面積
36.97㎡
所在階
20階建ての18階
向き
  • アイコン: 住所 東京都中野区中野4丁目
  • アイコン: 交通 JR中央本線 「中野駅」 徒歩8分 / 東京メトロ東西線 「中野駅」 徒歩8分
簡単無料
アイコン: お電話 0037-6001-08163
IP電話ご利用のお客様 : 0422-39-3966
ピタットハウス
武蔵境店
お気軽にお問い合わせください!
簡単無料
お気軽にお問い合わせください!
物件情報・周辺環境・契約手続きについてなどお気軽にお問い合わせください。

設備・条件

建物・立地
  • 分譲マンションタイプ
  • 免震構造
  • エレベータ
  • 宅配ボックス
  • 敷地内ごみ置き場
  • 常時ゴミ出し可能
  • バイク置場
セキュリティ
  • オートロック
  • モニタ付オートロック
部屋設備
  • フローリング
  • バルコニー
  • 室内洗濯機置場
冷暖房
  • エアコン
  • 床暖房
キッチン
  • システムキッチン
  • グリル
バス・トイレ
  • バス・トイレ別
  • 浴室乾燥機
  • 追い焚き風呂
  • 独立洗面台
特徴
  • 新築
  • ペット相談可
  • ピアノ相談可
  • 事務所利用不可

物件概要

物件種別

部屋種別 マンション
建物名称 パークシティ中野 ザ タワー ブリーズ(1804)
所在地 東京都中野区中野4丁目 MAP
築年月 2025年10月 階数 20階建ての18階
建物構造 鉄筋コンクリート造 総戸数 -
間取り 1LDK 専有面積 36.97㎡
向き バルコニー面積 -
その他 -

費用

賃料 22万円 初期費用の確認をする 初期費用の確認をする 共益費 20,000円
礼金 33万円 敷金 22万円
保証金 - 償却金 -
その他一時金 室内清掃費:59400円
その他月額費用 口座振替事務手数料:220円/月
住宅保険 要加入
保証会社 必須
保証会社補足 初回保証委託料(最低15,000円):月額賃料等の50%、 2年目以降:10,000円/年
更新料 - 更新事務手数料 -

契約条件

貸家契約区分 定期賃貸借 契約期間 2年
入居可能日 2026年5月1日予定 空室状況を確認をする 空室状況を確認をする 引渡時期相談内容 -
フリーレント -
クレジットカード決済 -

駐車場

駐車場 なし 駐車場について質問する 駐車場について質問する
駐車場契約形態 -
駐車場備考 -
バイク置き場 -
駐輪場 -

備考

その他
関連リンク
取引態様 媒介 管理コード 4797702
情報登録(更新)日 2026年4月3日 次回更新予定日 2026年4月11日
備考 めやす賃料:

めやす賃料とは賃料、共益費・管理費、敷引金、更新料を含み、賃料等条件の改定がないものと仮定して4年間賃借した場合(定期借家の場合は契約期間)の1ヶ月当たりの金額です。

※敷引金は、敷金の償却、保証金の償却など、預かった金額から必ず引くものをいいます。
※めやす賃料は、消費者に適切な情報を提供するための表示であり事業者に一時金を推奨するものではありません。
※めやす賃料は、実際の総支払額と異なる場合があります。詳しくは不動産会社にご確認ください。  

パークシティ中野 ザ タワー ブリーズ の他の空室物件

19
建物の空室物件一覧 次へ

取扱店舗

ピタットハウス武蔵境店
ピタットハウス武蔵境店
株式会社東洋リーベスト
交通
JR中央線 『武蔵境駅』 南口より 徒歩30秒 駐車場有 
営業時間
10:00 〜 19:00
定休日
毎週水曜日・冬期休業・12/28から1/4まで
  • 近隣駐車場あり/キッズスペースあり
お電話 0037-6001-08163 無料
メール お問い合わせ
  • お問い合わせ区分

  • 内見希望日時

    第一希望

    第二希望

  • お名前

    全角
  • ご希望の連絡方法

    メールアドレス

    電話番号

    半角
    半角
  • その他ご希望等

ピタットハウスの個人情報の取り扱いについて

ピタットハウスでは信頼されるサイトを目指して、物件情報の精度向上に努めています。
掲載物件に誤りがある場合は こちら からご連絡ください。現状と異なる場合は、現状を優先させていただきます。
取引態様の欄に「媒介」と表示された物件は「仲介物件」です。ご成約の際には仲介手数料を申し受けます。

生活情報

中野区の暮らしデータ

中野区は、1889年、甲武鉄道(現・中央線)の開通で中野駅が開設され、近郊住宅地として発展しました。その後、西武新宿線や地下鉄丸の内線の開通により人口増加と宅地化が一層進行しました。人口密度は東京23区の中でも上位に位置し、世帯の6割以上は単身世帯、また、65歳以上の人口は、約19.4%を占めています。最も多い年齢層は、25〜29歳となっています(2025年6月現在)。中野駅周辺のまちづくりの進展により、2012年にオープンした「中野四季の都市(まち)」に大学や企業が集積し、占めている昼間人口が増えました。さらに、中野駅周辺各地区の再開発により、中野が「東京の新たなエネルギーを生み出す活動拠点」となることを目指しています。

基本データ

市区役所所在地 中野区中野4-11-19
公式ホームページURL https://www.city.tokyo-nakano.lg.jp/
総人口 344,880人
人口増減率(2015年/2020年) 105.1%
中野区の生活情報を詳しくみる

地域のおすすめ情報ブログ

一覧を見る