前へ
次へ
前へ
次へ
マンション

パークシュロス芦屋(307)

20.5 万円
共益費 30,000
20.5万円
-
間取り
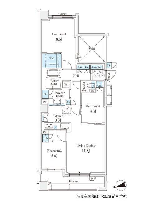
3LDK
専有面積
74.56㎡
所在階
5階建ての3階
向き
西
  • アイコン: 住所 兵庫県芦屋市朝日ケ丘町
  • アイコン: 交通 阪急電鉄神戸線 「芦屋川駅」 徒歩18分 / JR東海道本線 「芦屋駅」 徒歩18分
簡単無料
アイコン: お電話 0037-6001-05865
IP電話ご利用のお客様 : 078-262-1985
ピタットハウス
灘店
お気軽にお問い合わせください!
簡単無料
お気軽にお問い合わせください!
物件情報・周辺環境・契約手続きについてなどお気軽にお問い合わせください。

設備・条件

建物・立地
  • エレベータ
  • 宅配ボックス
  • 敷地内ごみ置き場
  • バイク置場
通信
  • CATV
セキュリティ
  • オートロック
部屋設備
  • フローリング
  • バルコニー
  • 室内洗濯機置場
  • ウォークインクロゼット
冷暖房
  • エアコン
  • 床暖房
キッチン
  • システムキッチン
  • 食器乾燥機
  • 食器洗浄乾燥機
  • グリル
バス・トイレ
  • バス・トイレ別
  • 浴室乾燥機
  • 追い焚き風呂
  • 独立洗面台
特徴
  • ペット相談可
  • 事務所利用不可

物件概要

物件種別

部屋種別 マンション
建物名称 パークシュロス芦屋(307)
所在地 兵庫県芦屋市朝日ケ丘町 MAP
築年月 2022年7月 階数 5階建ての3階
建物構造 鉄筋コンクリート造 総戸数 -
間取り 3LDK 専有面積 74.56㎡
向き 西 バルコニー面積 8.00㎡
その他 管理形態:日勤管理 

費用

賃料 20.5万円 初期費用の確認をする 初期費用の確認をする 共益費 30,000円
礼金 - 敷金 20.5万円
保証金 - 償却金 -
その他一時金 室内清掃費:98419円 / 鍵交換費:22000円
その他月額費用 口座振替事務手数料:110円/月
住宅保険 要加入
保証会社 必須
保証会社補足 初回保証委託料(最低20,000円):月額賃料等の50%、2年目以降:10,000円/年、決済手数料300円(税込)/月
更新料 - 更新事務手数料 -

契約条件

貸家契約区分 普通賃貸借 契約期間 2年
入居可能日 2026年1月11日予定 空室状況を確認をする 空室状況を確認をする 引渡時期相談内容 -
フリーレント -
クレジットカード決済 -

駐車場

駐車場 なし 駐車場について質問する 駐車場について質問する
駐車場契約形態 -
駐車場備考 -
バイク置き場 -
駐輪場 -

備考

その他
関連リンク
取引態様 媒介 管理コード 4419214
情報登録(更新)日 2025年11月20日 次回更新予定日 2025年12月1日
備考 めやす賃料:

めやす賃料とは賃料、共益費・管理費、敷引金、更新料を含み、賃料等条件の改定がないものと仮定して4年間賃借した場合(定期借家の場合は契約期間)の1ヶ月当たりの金額です。

※敷引金は、敷金の償却、保証金の償却など、預かった金額から必ず引くものをいいます。
※めやす賃料は、消費者に適切な情報を提供するための表示であり事業者に一時金を推奨するものではありません。
※めやす賃料は、実際の総支払額と異なる場合があります。詳しくは不動産会社にご確認ください。  

取扱店舗

ピタットハウス灘店
ピタットハウス灘店
マーブルホーム株式会社
交通
JR灘駅北口出て徒歩1分
営業時間
10:00 〜 19:00
定休日
毎週水曜日・冬季休暇(12月28日〜1月5日)
  • 駐車場あり/近隣駐車場あり
お電話 0037-6001-05865 無料
メール お問い合わせ
  • お問い合わせ区分

  • 内見希望日時

    第一希望

    第二希望

  • お名前

    全角
  • ご希望の連絡方法

    メールアドレス

    電話番号

    半角
    半角
  • その他ご希望等

ピタットハウスの個人情報の取り扱いについて

ピタットハウスでは信頼されるサイトを目指して、物件情報の精度向上に努めています。
掲載物件に誤りがある場合は こちら からご連絡ください。現状と異なる場合は、現状を優先させていただきます。
取引態様の欄に「媒介」と表示された物件は「仲介物件」です。ご成約の際には仲介手数料を申し受けます。

生活情報

芦屋市の暮らしデータ

芦屋市は、大阪と神戸の中間に位置し、六甲山を背景に、瀬戸内海に面した風光明媚な土地柄から、伊勢物語や万葉集などに詠われた古来からの都人あこがれの地です。大正以後、交通網の発達に伴い、大都市近郊住宅地として日本有数の高級住宅街を形成しました。全国でも屈指の「国際文化住宅都市」として発展し、全市域を景観法による芦屋景観地区に指定するなど、緑豊かな美しい芦屋を目指したまちづくりを進めています。

基本データ

市区役所所在地 芦屋市精道町7-6
公式ホームページURL https://www.city.ashiya.lg.jp/
総人口 93,922人
人口増減率(2015年/2020年) 98.5%
芦屋市の生活情報を詳しくみる