88万円
倉庫
種別 倉庫・収納庫
専有面積 1,182.06㎡
おすすめ
ポイント
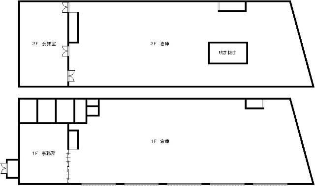
★事務所・倉庫★
2棟一括賃貸 現況貸しとなります 敷地面積700坪超 長野電鉄『柳原駅』より徒歩約6分に立地
| 築年月 | 1990年4月 |
|---|---|
| 構造 | 重量鉄骨造 |
| 所在階 | 2階建ての1階~2階 |
| 向き | - |
| バルコニー面積 | - |
| 駐車場 | 有り(無料) |
| 入居可能日 | 2026年2月10日予定 |
| 賃貸借の種類 | 普通賃貸借 |
| 契約期間 | 3年 |
| 共益費・管理費 | - |
| 敷金 | 240万円 |
| 礼金 | 880,000円 |
| 保証金 | - |
| 償却金 | - |
| 更新料 | - |
| 保証料等 | 要加入(2年) |
| 保証会社補足 | 初回保証料:賃料等総額100% 月額手数料:毎月440円 継続保証料:賃料等総額10%/年(最低保証料10,000円) |
| 取引態様 | 媒介 |
| 情報更新日 | 2026年1月8日 |
| 次回更新予定日 | 2026年1月18日 |
設備・特記
《設備》敷地内駐車場/公営水道/下水
《その他一時金》-
《その他月額費用》-
備考
《更新事務手数料》:440,000円
《その他》※敷地内別建物も一括賃貸となります(鉄骨造平屋建 /160㎡/築32年 賃料込み)
※現状と異なる場合は、現状を優先させていただきます。取引態様の欄に「媒介」と表示された物件は「仲介物件」です。ご成約の際には仲介手数料を申し受けます。