前へ
次へ
前へ
次へ
マンション

パークアクシス板橋(403)

15.1 万円
共益費 8,000
15.1万円
15.1万円
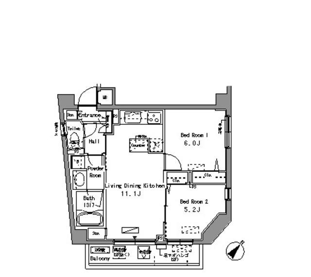
間取り
1DK
専有面積
33.27㎡
所在階
9階建ての4階
向き
  • アイコン: 住所 東京都北区滝野川7丁目
  • アイコン: 交通 都営三田線 「新板橋駅」 徒歩9分 / JR埼京線 「板橋駅」 徒歩5分 / 東武東上線 「北池袋駅」 徒歩10分
簡単無料
アイコン: お電話 0037-6001-06881
IP電話ご利用のお客様 : 03-3381-7770
ピタットハウス
中野南口店
お気軽にお問い合わせください!
簡単無料
お気軽にお問い合わせください!
物件情報・周辺環境・契約手続きについてなどお気軽にお問い合わせください。

設備・条件

建物・立地
  • エレベータ
  • 宅配ボックス
  • 耐震構造
  • 敷地内ごみ置き場
  • 常時ゴミ出し可能
  • バイク置場
通信
  • インターネット対応
  • CATV
  • BSアンテナ
  • CSアンテナ
  • CATVインターネット
セキュリティ
  • オートロック
  • モニタ付オートロック
部屋設備
  • フローリング
  • バルコニー
  • 室内洗濯機置場
冷暖房
  • エアコン
キッチン
  • システムキッチン
バス・トイレ
  • バス・トイレ別
  • 浴室乾燥機
  • 追い焚き風呂
特徴
  • ペット相談可
  • ピアノ相談可
  • 事務所利用不可

物件概要

物件種別

部屋種別 マンション
建物名称 パークアクシス板橋(403)
所在地 東京都北区滝野川7丁目 MAP
築年月 2008年10月 階数 9階建ての4階
建物構造 鉄筋コンクリート造 総戸数 -
間取り 1DK 専有面積 33.27㎡
向き バルコニー面積 3.00㎡
その他 管理形態:巡回管理 

費用

賃料 15.1万円 初期費用の確認をする 初期費用の確認をする 共益費 8,000円
礼金 15.1万円 敷金 15.1万円
保証金 - 償却金 -
その他一時金 室内清掃費:59400円 / 鍵交換費:16500円
その他月額費用 口座振替事務手数料:220円/月
住宅保険 要加入
保証会社 必須
保証会社補足 初回保証委託料(最低20,000円):月額賃料等の50%、 2年目以降:9,600円/年
更新料 更新後賃料:1ヶ月 更新事務手数料 -

契約条件

貸家契約区分 普通賃貸借 契約期間 2年
入居可能日 2026年4月30日予定 空室状況を確認をする 空室状況を確認をする 引渡時期相談内容 -
フリーレント -
クレジットカード決済 -

駐車場

駐車場 なし 駐車場について質問する 駐車場について質問する
駐車場契約形態 -
駐車場備考 -
バイク置き場 -
駐輪場 -

備考

その他
関連リンク
取引態様 媒介 管理コード 3570886
情報登録(更新)日 2026年4月17日 次回更新予定日 2026年4月25日
備考 めやす賃料:

めやす賃料とは賃料、共益費・管理費、敷引金、更新料を含み、賃料等条件の改定がないものと仮定して4年間賃借した場合(定期借家の場合は契約期間)の1ヶ月当たりの金額です。

※敷引金は、敷金の償却、保証金の償却など、預かった金額から必ず引くものをいいます。
※めやす賃料は、消費者に適切な情報を提供するための表示であり事業者に一時金を推奨するものではありません。
※めやす賃料は、実際の総支払額と異なる場合があります。詳しくは不動産会社にご確認ください。  

取扱店舗

ピタットハウス中野南口店
ピタットハウス中野南口店
株式会社松崎ハウジング
交通
JR中央線・東京メトロ東西線中野駅南口より徒歩1分
営業時間
10:00 〜 18:00
定休日
毎週水曜日・GW休業:5/2〜5/6
お電話 0037-6001-06881 無料
メール お問い合わせ
  • お問い合わせ区分

  • 内見希望日時

    第一希望

    第二希望

  • お名前

    全角
  • ご希望の連絡方法

    メールアドレス

    電話番号

    半角
    半角
  • その他ご希望等

ピタットハウスの個人情報の取り扱いについて

ピタットハウスでは信頼されるサイトを目指して、物件情報の精度向上に努めています。
掲載物件に誤りがある場合は こちら からご連絡ください。現状と異なる場合は、現状を優先させていただきます。
取引態様の欄に「媒介」と表示された物件は「仲介物件」です。ご成約の際には仲介手数料を申し受けます。

生活情報

北区の暮らしデータ

北区は、武蔵野台地の縁辺部から東京低地へと連続した地勢を有し、荒川、隅田川、石神井川といった水辺空間に囲まれた、緑豊かな自然が魅力のまちです。これら河川周辺は憩いの空間として整備されており、週末にはスポーツやレジャーを楽しむ多くの人々で賑わっています。一方、JRの駅が都内最多の11駅あり、加えて、地下鉄・都電が区内各所を走り、交通の利便性が抜群です。また、子どもが安心して遊べる公園が数多く設置され、商店街も活気があり、暮らしやすい環境がそろっています。

基本データ

市区役所所在地 北区王子本町1-15-22
公式ホームページURL https://www.city.kita.lg.jp/
総人口 355,213人
人口増減率(2015年/2020年) 104.1%
北区の生活情報を詳しくみる

地域のおすすめ情報ブログ