9,198万円
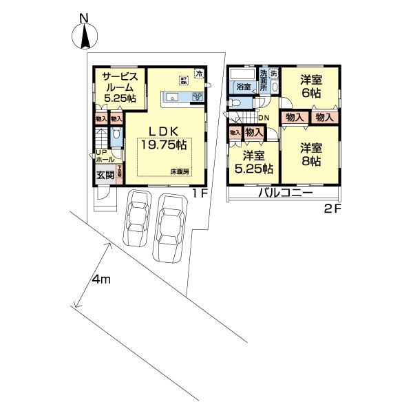
3SLDK
種別 戸建て
建物面積 99.36㎡(壁芯)
おすすめ
ポイント
全8棟 緑豊かな環境と都心へのアクセスを兼ね備えた夢の邸宅!
建物完成!実物を見学して陽当たりやお部屋の開放感を確認出来ます
「居住空間のゆとり」「開放的な設計」「設備・仕様」がポイント!
床暖房 玄関カードキー 複層ガラス TVモニターホン 食洗器
| 築年月 | 2025年11月 |
|---|---|
| 構造 | 木造 |
| 階数 | 2階建て |
| 土地面積 | 100.28㎡ (30.33坪) |
| 駐車スペース | 駐車場あり( 2台) |
| 都市計画 | 市街化区域 |
| 用途地域 | 第一種中高層住居専用地域 |
| 建蔽率/容積率 | 50% / 100% |
| 地目 | 宅地 |
| 区画整理 | - |
| 接道 | |
| 私道 | なし |
| 権利 | 所有権 |
| 借地権 | - |
| 現況 | 空室(入居歴無) |
| 引渡時期 | 即時 |
| 引渡条件 | |
| 取引態様 | 媒介 |
| 管理コード | ST412870 |
設備・特記
《設備》:上水道/床暖房/フラット35S適合・利用可/小学校徒歩10分以内/複層ガラス/下水道/カウンターキッチン/クローゼット/浴室暖房/システムキッチン/追い焚き風呂/3口コンロ/浴室乾燥機/バルコニー/24時間換気システム/LDK18畳以上/駐車場2台分/都市ガス/性能評価書取得/整形地/設計住宅性能評価書/納戸/全居室収納/トイレ2ヶ所/スマートキー/温水洗浄便座/洗髪洗面化粧台/食器洗浄乾燥機/床下収納/全居室フローリング/TVモニター付きインターホン
《物件の特徴》:-
備考
《その他制限》:第1種高度地区、最低敷地面積60㎡、都市計画公園、宅地造成等工事規制区域、準防火地域
《その他》:販売戸数:7戸 / 備考:全8棟 緑豊かな環境と都心へのアクセスを兼ね備えた夢の邸宅!。建物完成!実物を見学して陽当たりやお部屋の開放感を確認出来ます。「居住空間のゆとり」「開放的な設計」「設備・仕様」がポイント!。床暖房 玄関カードキー 複層ガラス TVモニターホン 食洗器。 / 国土法届出:不要
《建築確認番号》:第HPA-25-01517-1号
※詳細については、Webサイトにてご確認ください。現状と異なる場合は、現状を優先させていただきます。
※取引態様の欄に「媒介」と表示された物件は「仲介物件」です。ご成約の際には仲介手数料を申し受けます。
情報更新日|2025年12月19日
次回更新予定|2026年1月4日