4,580万円
3LDK
種別 戸建て
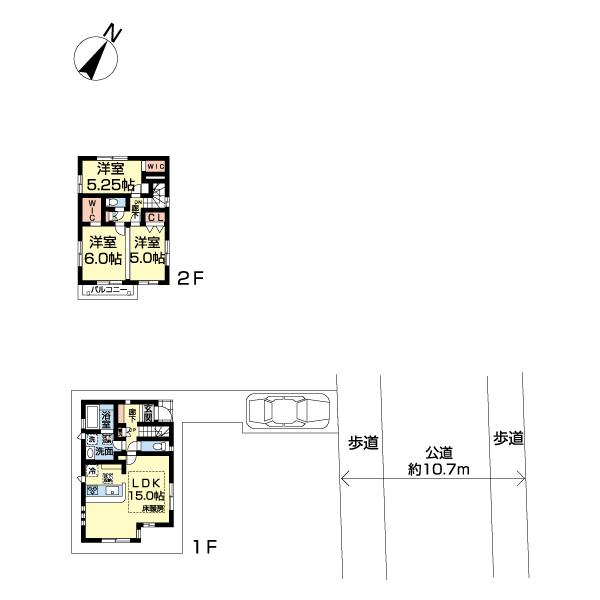
建物面積 77.34㎡(壁芯)
おすすめ
ポイント
アクセントクロス・1F折上天井の採用でお部屋におしゃれを演出!
小・中学校徒歩10分圏内。近隣は商業施設が充実したエリアです。
家にいる時間をより快適に、機能的に。食洗機・床暖房・WIC付等
住宅性能評価書(設計・建設)W取得で安心の住まいを提供します。
| 築年月 | 2026年3月 |
|---|---|
| 構造 | 木造 |
| 階数 | 2階建て |
| 土地面積 | 82.27㎡ (24.88坪) |
| 駐車スペース | 駐車場あり( 1台) |
| 都市計画 | 市街化区域 |
| 用途地域 | 第一種中高層住居専用地域 |
| 建蔽率/容積率 | 60% / 200% |
| 地目 | 宅地 |
| 区画整理 | - |
| 接道 | 北東側10.7m公道に接道 |
| 私道 | なし |
| 権利 | 所有権 |
| 借地権 | - |
| 現況 | 空室(入居歴無) |
| 引渡時期 | 相談 |
| 引渡条件 | |
| 取引態様 | 媒介 |
| 管理コード | ST415658 |
設備・特記
《設備》:BELS/省エネ基準適合/上水道/床暖房/前道6m以上/小学校徒歩10分以内/複層ガラス/下水道/カウンターキッチン/クローゼット/浴室暖房/システムキッチン/追い焚き風呂/3口コンロ/浴室乾燥機/バルコニー/24時間換気システム/都市ガス/性能評価書取得/設計住宅性能評価書/三面採光/全室2面採光/LDK15畳以上/浄水器/全居室収納/トイレ2ヶ所/温水洗浄便座/洗髪洗面化粧台/食器洗浄乾燥機/床下収納/ウォークインクローゼット/TVモニター付きインターホン
《物件の特徴》:-
備考
《その他制限》:第2種高度地区 準防火地域
《その他》:販売戸数:2戸 / 備考:アクセントクロス・1F折上天井の採用でお部屋におしゃれを演出!小・中学校徒歩10分圏内。近隣は商業施設が充実したエリアです。家にいる時間をより快適に、機能的に。食洗機・床暖房・WIC付等住宅性能評価書(設計・建設)W取得で安心の住まいを提供します。 / 国土法届出:不要
《建築確認番号》:第R07SHC121271号
※詳細については、Webサイトにてご確認ください。現状と異なる場合は、現状を優先させていただきます。
※取引態様の欄に「媒介」と表示された物件は「仲介物件」です。ご成約の際には仲介手数料を申し受けます。
情報更新日|2026年4月27日
次回更新予定|2026年5月15日