4,290万円
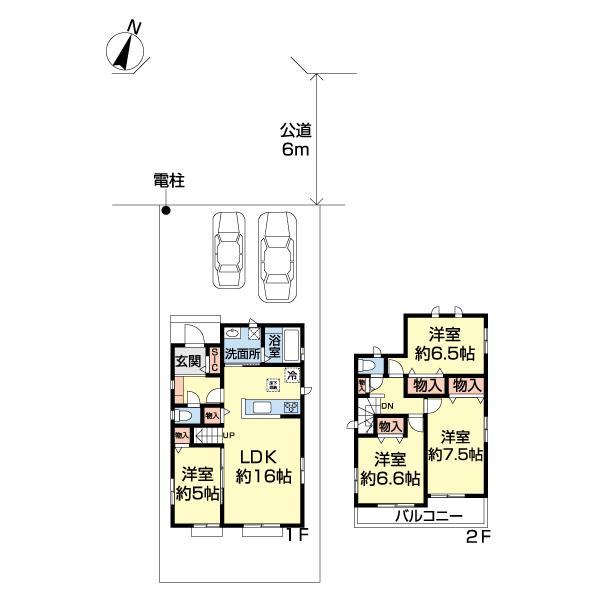
4LDK
種別 戸建て
建物面積 97.50㎡(壁芯)
おすすめ
ポイント
全5棟 商業・教育施設は身近!快適な暮らしを叶える閑静な住宅街
2階建プラン 4LDK 全棟並列カースペース2台可能!
心地よい室内空間ゆとりのLDK15帖以上。対面キッチンです。
SIC 複層ガラス 24時間換気 モニター付インターホン 他。
| 築年月 | 2025年12月 |
|---|---|
| 構造 | 木造 |
| 階数 | 2階建て |
| 土地面積 | 130.10㎡ (39.35坪) |
| 駐車スペース | 駐車場あり( 2台) |
| 都市計画 | 市街化区域 |
| 用途地域 | 第一種低層住居専用地域 |
| 建蔽率/容積率 | 60% / 150% |
| 地目 | 宅地 |
| 区画整理 | - |
| 接道 | |
| 私道 | なし |
| 権利 | 所有権 |
| 借地権 | - |
| 現況 | 未完成 |
| 引渡時期 | 2025年12月下旬予定 |
| 引渡条件 | |
| 取引態様 | 媒介 |
| 管理コード | ST411408 |
設備・特記
《設備》:BELS/省エネ基準適合/上水道/前道6m以上/フラット35S適合・利用可/小学校徒歩10分以内/複層ガラス/下水道/カウンターキッチン/クローゼット/システムキッチン/追い焚き風呂/3口コンロ/バルコニー/24時間換気システム/駐車場2台分/ワイドバルコニー/都市ガス/長期優良住宅/整形地/性能評価書取得/設計住宅性能評価書/LDK15畳以上/閑静な住宅街/全居室収納/トイレ2ヶ所/温水洗浄便座/洗髪洗面化粧台/床下収納/シューズインクローゼット/全居室フローリング/TVモニター付きインターホン
《物件の特徴》:-
備考
《その他制限》:草加市小規模開発事業・新田西部地区地区計画(D地区)・最低敷地面積130㎡
《その他》:備考:全5棟 商業・教育施設は身近!快適な暮らしを叶える閑静な住宅街。2階建プラン 4LDK 全棟並列カースペース2台可能!心地よい室内空間ゆとりのLDK15帖以上。対面キッチンです。SIC 複層ガラス 24時間換気 モニター付インターホン 他。 / 国土法届出:不要
《建築確認番号》:第HPA-25-10930-1号
※詳細については、Webサイトにてご確認ください。現状と異なる場合は、現状を優先させていただきます。
※取引態様の欄に「媒介」と表示された物件は「仲介物件」です。ご成約の際には仲介手数料を申し受けます。
情報更新日|2025年11月13日
次回更新予定|2025年11月30日