4,690万円
3LDK
種別 戸建て
建物面積 99.78㎡(壁芯)
おすすめ
ポイント
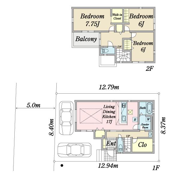
敷地32.6坪 整形地 全居室6帖以上のゆとりある間取り。
折り上げ天井採用のLDK17帖 対面キッチン 2way洗面所。
衣類や小物の収納に便利なファミリークローゼット・WIC。
閑静な住宅街 駐車2台可能 小学校や公園、各商業施設が徒歩圏内
| 築年月 | 2026年6月 |
|---|---|
| 構造 | 木造 |
| 階数 | 2階建て |
| 土地面積 | 107.96㎡ (32.65坪) |
| 駐車スペース | 駐車場あり( 2台) |
| 都市計画 | 市街化区域 |
| 用途地域 | 第一種低層住居専用地域 |
| 建蔽率/容積率 | 50% / 100% |
| 地目 | 宅地 |
| 区画整理 | - |
| 接道 | |
| 私道 | なし |
| 権利 | 所有権 |
| 借地権 | - |
| 現況 | 未完成 |
| 引渡時期 | 2026年6月下旬予定 |
| 引渡条件 | |
| 取引態様 | 媒介 |
| 管理コード | ST415079 |
設備・特記
《設備》:上水道/耐震構造/フラット35S適合・利用可/小学校徒歩10分以内/複層ガラス/下水道/カウンターキッチン/クローゼット/浴室暖房/システムキッチン/追い焚き風呂/浴室乾燥機/バルコニー/24時間換気システム/駐車場2台分/都市ガス/長期優良住宅/整形地/性能評価書取得/設計住宅性能評価書/南向き/LDK15畳以上/閑静な住宅街/全居室収納/地盤調査書有/トイレ2ヶ所/温水洗浄便座/洗髪洗面化粧台/ウォークインクローゼット
《物件の特徴》:2路線2駅利用可能な新築戸建て。前面道路も敷地も、間取りもゆとりのある物件です。
備考
《その他》:販売戸数:1戸 / 備考:敷地32.6坪 整形地 全居室6帖以上のゆとりある間取り。折り上げ天井採用のLDK17帖 対面キッチン 2way洗面所。衣類や小物の収納に便利なファミリークローゼット・WIC。閑静な住宅街 駐車2台可能 小学校や公園、各商業施設が徒歩圏内。 / 地勢:平坦 / 国土法届出:不要
《建築確認番号》:第HPA-26-01285-1号
※詳細については、Webサイトにてご確認ください。現状と異なる場合は、現状を優先させていただきます。
※取引態様の欄に「媒介」と表示された物件は「仲介物件」です。ご成約の際には仲介手数料を申し受けます。
情報更新日|2026年3月21日
次回更新予定|2026年4月18日