57万円
その他
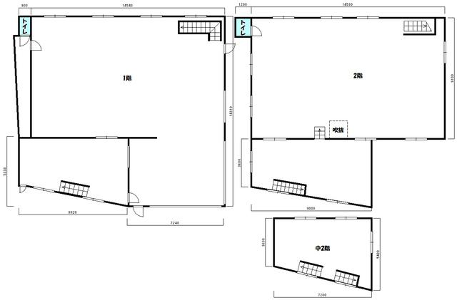
種別 その他
専有面積 129.50㎡
おすすめ
ポイント
お問い合わせは072-870-7891まで
| 築年月 | 1982年1月 |
|---|---|
| 構造 | 重量鉄骨造 |
| 所在階 | 3階建ての1階 |
| 向き | - |
| バルコニー面積 | - |
| 駐車場 | 有り(無料) |
| 入居可能日 | 相談 |
| 賃貸借の種類 | 普通賃貸借 |
| 契約期間 | 5年 |
| 共益費・管理費 | - |
| 敷金 | - |
| 礼金 | - |
| 保証金 | 3,420,000円 |
| 償却金 | 228.0万円(解約時) |
| 更新料 | - |
| 保証料等 | 要加入 |
| 保証会社補足 | - |
| 取引態様 | 媒介 |
| 情報更新日 | 2026年4月18日 |
| 次回更新予定日 | 2026年4月25日 |
設備・特記
《設備》バスなし/トイレ/敷地内駐車場/駐輪場/バイク置場
《物件の特徴》初期費用カード決済可
《その他一時金》-
《その他月額費用》-
備考
《その他》◎現地集合でのご案内も可能です ◎申込受付中です
※現状と異なる場合は、現状を優先させていただきます。取引態様の欄に「媒介」と表示された物件は「仲介物件」です。ご成約の際には仲介手数料を申し受けます。