5,480万円
4LDK
種別 戸建て
建物面積 107.93㎡(壁芯)
おすすめ
ポイント
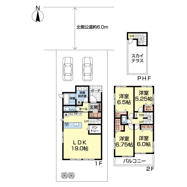
全4棟の新築分譲住宅/敷地約130〜140㎡/スカイテラス完備
広いリビングは家族のくつろぎのスペース。LDK19〜20帖以上
適材適所に設置されたクローゼットが、すっきりキレイに片付けます
食洗機&浴室乾燥機等装備/不在時も安心、大容量宅配ボックス設置
| 築年月 | 2026年7月 |
|---|---|
| 構造 | 木造 |
| 階数 | 2階建て |
| 土地面積 | 130.53㎡ (39.48坪) |
| 駐車スペース | 駐車場あり( 2台) |
| 都市計画 | 市街化区域 |
| 用途地域 | 第一種中高層住居専用地域 |
| 建蔽率/容積率 | 60% / 200% |
| 地目 | 宅地 |
| 区画整理 | - |
| 接道 | |
| 私道 | なし |
| 権利 | 所有権 |
| 借地権 | - |
| 現況 | 未完成 |
| 引渡時期 | 2026年8月下旬予定 |
| 引渡条件 | |
| 取引態様 | 媒介 |
| 管理コード | ST415145 |
設備・特記
《設備》:上水道/前道6m以上/小学校徒歩10分以内/下水道/クローゼット/カウンターキッチン/テラス/システムキッチン/追い焚き風呂/3口コンロ/浴室乾燥機/24時間換気システム/LDK18畳以上/駐車場2台分/ワイドバルコニー/都市ガス/全室2面採光/パントリー/全居室収納/浄水器/トイレ2ヶ所/温水洗浄便座/食器洗浄乾燥機/ウォークインクローゼット/全居室フローリング
《物件の特徴》:-
備考
《その他制限》:都市計画区域内、日影規制3h/2h、第二種高度地区、西平山土地区画整理事業地内
《その他》:備考:全4棟の新築分譲住宅/敷地約130〜140㎡/スカイテラス完備/広いリビングは家族のくつろぎのスペース。LDK19〜20帖以上/適材適所に設置されたクローゼットが、すっきりキレイに片付けます/食洗機&浴室乾燥機等装備/不在時も安心、大容量宅配ボックス設置 / 国土法届出:不要
《建築確認番号》:JTC25Y-AK0428-01号
※詳細については、Webサイトにてご確認ください。現状と異なる場合は、現状を優先させていただきます。
※取引態様の欄に「媒介」と表示された物件は「仲介物件」です。ご成約の際には仲介手数料を申し受けます。
情報更新日|2026年3月30日
次回更新予定|2026年4月18日