4,390万円
4LDK
種別 戸建て
建物面積 101.84㎡(壁芯)
おすすめ
ポイント
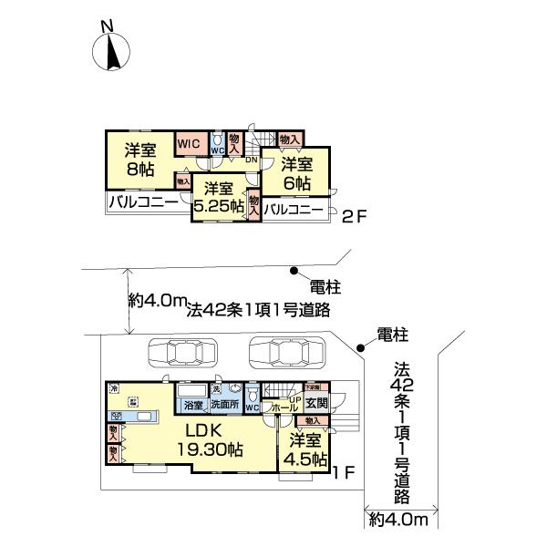
新築分譲住宅全2棟。「我孫子」駅徒歩12分。敷地約40坪越!
全居室南向きで陽当り良好。19帖以上の広々LDKで時間を共有。
カースペースも完備しており、2台駐車可能となっております。
小学校・中学校徒歩圏内で、生活関連施設も充実している好立地!
築年月 | 2025年9月 |
---|---|
構造 | 木造 |
階数 | 2階建て |
土地面積 | 135.00㎡ (40.83坪) |
駐車スペース | 駐車場あり( 2台) |
都市計画 | 市街化区域 |
用途地域 | 第一種中高層住居専用地域 |
建蔽率/容積率 | 60% / 200% |
地目 | 宅地 |
区画整理 | - |
接道 | 北側4.0m公道に接道/東側4.0m公道に接道 |
私道 | なし |
権利 | 所有権 |
借地権 | - |
現況 | 空室(入居歴無) |
引渡時期 | 即時 |
引渡条件 | |
取引態様 | 媒介 |
管理コード | ST410119 |
設備・特記
《設備》:陽当り良好/上水道/フラット35S適合・利用可/小学校徒歩10分以内/下水道/カウンターキッチン/クローゼット/浴室暖房/システムキッチン/追い焚き風呂/3口コンロ/浴室乾燥機/LDK18畳以上/24時間換気システム/照明器具/駐車場2台分/バルコニー2面以上/南面バルコニー/都市ガス/性能評価書取得/南向き/設計住宅性能評価書/全居室収納/トイレ2ヶ所/温水洗浄便座/床下収納/ウォークインクローゼット/全居室フローリング/全室南向き/角地
《物件の特徴》:-
備考
《その他》:販売戸数:2戸 / 備考:新築分譲住宅全2棟。「我孫子」駅徒歩12分。敷地約40坪越!全居室南向きで陽当り良好。19帖以上の広々LDKで時間を共有。カースペースも完備しており、2台駐車可能となっております。小学校・中学校徒歩圏内で、生活関連施設も充実している好立地! / 国土法届出:不要
《建築確認番号》:第HPA-25-04059-1号
※詳細については、Webサイトにてご確認ください。現状と異なる場合は、現状を優先させていただきます。
※取引態様の欄に「媒介」と表示された物件は「仲介物件」です。ご成約の際には仲介手数料を申し受けます。
情報更新日|2025年10月11日
次回更新予定|2025年11月5日