4,700万円
4LDK
種別 戸建て
建物面積 139.06㎡(壁芯)
おすすめ
ポイント
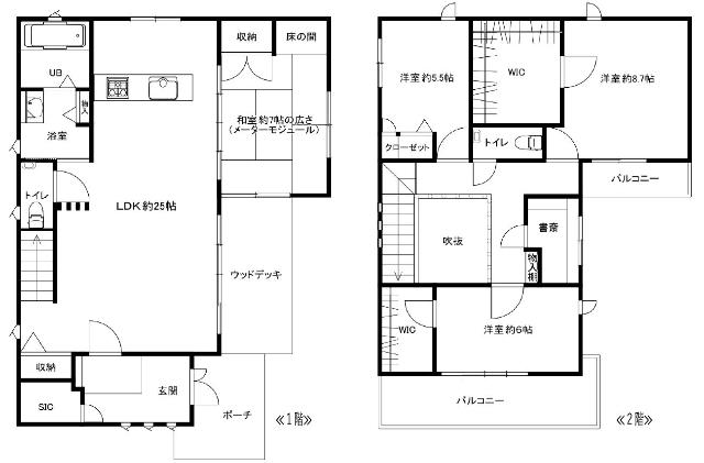
★セキスイハウス施工の注文住宅♪東金駅徒歩10分の好立地!
★吹抜け・リビング階段・アイランドキッチンなどこだわりの邸宅♪
★車は平置き悠々2台・その他ガレージ倉庫にも1台可能で大満足♪
★太陽光発電システム&エネファーム搭載のエコ住宅♪
| 築年月 | 2014年10月 |
|---|---|
| 構造 | 軽量鉄骨造 |
| 階数 | 2階建て |
| 土地面積 | 233.11㎡ (70.51坪) |
| 駐車スペース | 駐車場あり( 3台) |
| 都市計画 | |
| 用途地域 | 第二種低層住居専用地域 |
| 建蔽率/容積率 | 50% / 100% |
| 地目 | 宅地 |
| 区画整理 | - |
| 接道 | |
| 私道 | なし |
| 権利 | 所有権 |
| 借地権 | - |
| 現況 | 居住中 |
| 引渡時期 | 相談 |
| 引渡条件 | |
| 取引態様 | 媒介 |
| 管理コード | AGW400197 |
設備・特記
《設備》:陽当り良好/南道路/上水道/前道6m以上/床暖房/インターネット対応/複層ガラス/下水道/クローゼット/アイランドキッチン/庭/浴室暖房/システムキッチン/IHコンロ/オートバス/追い焚き風呂/浴室乾燥機/タンクレストイレ/LDK20畳以上/バルコニー/照明器具/24時間換気システム/バルコニー2面以上/駐車場3台分/プロパンガス/前面棟無/エアコン/区画整理地内/整形地/吹抜/閑静な住宅街/全室2面採光/全居室収納/トイレ2ヶ所/スマートキー/温水洗浄便座/洗髪洗面化粧台/食器洗浄乾燥機/床下収納/シューズインクローゼット/バス1坪以上/ウォークインクローゼット/ウッドデッキ/TVモニター付きインターホン/庭10坪以上
《物件の特徴》:-
備考
※詳細については、Webサイトにてご確認ください。現状と異なる場合は、現状を優先させていただきます。
※取引態様の欄に「媒介」と表示された物件は「仲介物件」です。ご成約の際には仲介手数料を申し受けます。
情報更新日|2025年11月16日
次回更新予定|2025年12月2日