7,990万円
4LDK
種別 戸建て
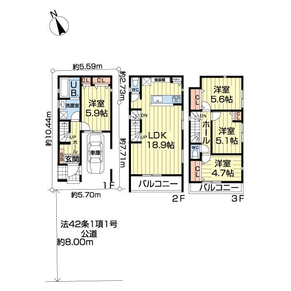
建物面積 111.59㎡(壁芯)
おすすめ
ポイント
都市の感性と空間の静謐。都心近接のスマートレジデンス。
広がりを感じるリビングと、家族それぞれの時間を大切にできます。
美しく整えられた空間が、心地よい毎日を育む4LDKプラン。
前面道路が約8mでゆとりがあり、駐車も楽に行うことができます。
| 築年月 | 2025年10月 |
|---|---|
| 構造 | 木造 |
| 階数 | 3階建て |
| 土地面積 | 59.05㎡ (17.86坪) |
| 駐車スペース | 駐車場あり( 1台) |
| 都市計画 | 市街化区域 |
| 用途地域 | 商業地域 |
| 建蔽率/容積率 | 80% / 400% |
| 地目 | 宅地 |
| 区画整理 | - |
| 接道 | 南西側8.0m公道に5.7m接道 |
| 私道 | なし |
| 権利 | 所有権 |
| 借地権 | - |
| 現況 | 空室(入居歴無) |
| 引渡時期 | 相談 |
| 引渡条件 | |
| 取引態様 | 媒介 |
| 管理コード | ST411427 |
設備・特記
《設備》:陽当り良好/都市ガス/上水道/前道6m以上/小学校徒歩10分以内/下水道/カウンターキッチン/クローゼット/パントリー/温水洗浄便座/システムキッチン/追い焚き風呂/3口コンロ/バルコニー/LDK18畳以上
《物件の特徴》:-
備考
《その他制限》:準防火地域/第7種高度地区
《その他》:販売戸数:1戸 / 管理組合:あり / 備考:地盤保証20年。建物保証20年。白蟻5年保証。 / 地勢:平坦 / 国土法届出:不要
《建築確認番号》:第2025SBC-確00219Y号
※詳細については、Webサイトにてご確認ください。現状と異なる場合は、現状を優先させていただきます。
※取引態様の欄に「媒介」と表示された物件は「仲介物件」です。ご成約の際には仲介手数料を申し受けます。
情報更新日|2025年11月8日
次回更新予定|2025年12月2日