前へ
次へ
前へ
次へ
店舗
即入居可

志木ニューダイエイ(4階)

166.782 万円
共益費 -
-
151.62万円
間取り
店舗
専有面積
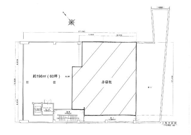
501.27㎡
所在階
地下1階・地上4階建ての4階
  • アイコン: 住所 埼玉県新座市東北2丁目
  • アイコン: 交通 東武東上線 「志木駅」 徒歩1分
簡単無料
アイコン: お電話 0037-6001-02244
IP電話ご利用のお客様 : 03-5302-5575
ピタットハウス
代々木店
お気軽にお問い合わせください!
簡単無料
お気軽にお問い合わせください!
物件情報・周辺環境・契約手続きについてなどお気軽にお問い合わせください。

設備・条件

建物・立地
  • 最上階
  • 角部屋
  • エレベータ
部屋設備
  • 陽当り良好
  • 眺望良好
  • 東南向き
  • 四方角部屋
冷暖房
  • エアコン

物件概要

物件種別

部屋種別 店舗
建物名称 志木ニューダイエイ(4階)
所在地 埼玉県新座市東北2丁目
築年月 1983年3月 階数 地下1階・地上4階建ての4階
建物構造 鉄筋コンクリート造 総戸数 5戸
間取り 店舗 専有面積 501.27㎡
その他 -

費用

賃料 166.782万円 初期費用の確認をする 初期費用の確認をする 共益費 -
礼金 151.62万円 敷金 -
保証金 909.72万円 償却金 151.6万円(解約時)
その他一時金 -
その他月額費用 -
住宅保険 要加入(2年)
保証会社 必須/エルズサポート
保証会社補足 賃料等合計の80%、翌年以降年会費20,000円
更新料 更新後賃料:1ヶ月 更新事務手数料 -

契約条件

貸家契約区分 定期賃貸借 契約期間 10年
入居可能日 即可 空室状況を確認をする 空室状況を確認をする
フリーレント -
クレジットカード決済 -

駐車場

駐車場 なし 駐車場について質問する 駐車場について質問する
駐車場契約形態 -
駐車場備考 -
バイク置き場 -
駐輪場 -

備考

その他
関連リンク
取引態様 媒介 管理コード 4788524
情報登録(更新)日 2026年4月6日 次回更新予定日 2026年4月25日
備考 めやす賃料:

めやす賃料とは賃料、共益費・管理費、敷引金、更新料を含み、賃料等条件の改定がないものと仮定して4年間賃借した場合(定期借家の場合は契約期間)の1ヶ月当たりの金額です。

※敷引金は、敷金の償却、保証金の償却など、預かった金額から必ず引くものをいいます。
※めやす賃料は、消費者に適切な情報を提供するための表示であり事業者に一時金を推奨するものではありません。
※めやす賃料は、実際の総支払額と異なる場合があります。詳しくは不動産会社にご確認ください。  

志木ニューダイエイ の他の空室物件

1

取扱店舗

ピタットハウス代々木店
ピタットハウス代々木店
株式会社ジェイ・エス・プラス
交通
JR『代々木』駅西口徒歩1分。1階ファミリーマート&三菱UFJ銀行のATMが目印の瀟洒な建物の3階です。
営業時間
09:30 〜 18:30
定休日
毎週水曜日・GW・夏期・年末年始・5/3〜5//7GW休業
お電話 0037-6001-02244 無料
メール お問い合わせ
  • お問い合わせ区分

  • 内見希望日時

    第一希望

    第二希望

  • お名前

    全角
  • ご希望の連絡方法

    メールアドレス

    電話番号

    半角
    半角
  • その他ご希望等

ピタットハウスの個人情報の取り扱いについて

ピタットハウスでは信頼されるサイトを目指して、物件情報の精度向上に努めています。
掲載物件に誤りがある場合は こちら からご連絡ください。現状と異なる場合は、現状を優先させていただきます。
取引態様の欄に「媒介」と表示された物件は「仲介物件」です。ご成約の際には仲介手数料を申し受けます。

生活情報

新座市の暮らしデータ

新座市は、1970年11月1日に市制施行。現在16万人余りの人口を擁する首都圏の中堅都市です。市の北端に東武東上線、南に西武池袋線、市の中央部北寄りにJR武蔵野線が走り、池袋から電車で約20分という立地の良さから、東京のベッドタウンとして発展しました。3つの大学が所在する文教都市の特徴も併せ持ちます。

基本データ

市区役所所在地 新座市野火止1-1-1
公式ホームページURL https://www.city.niiza.lg.jp/
総人口 166,017人
人口増減率(2015年/2020年) 102.4%
新座市の生活情報を詳しくみる