賃貸マンション
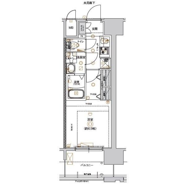
CREST TAPP平安通
NEW-
愛知県名古屋市北区上飯田北町1丁目 MAP
-
- 名古屋市上飯田線 「上飯田駅」 徒歩3分 / 名鉄小牧線 「上飯田駅」 徒歩3分 / 名古屋市名城線 「平安通駅」 徒歩12分
- 築年月
- 2024年6月
- 構造
- 鉄筋コンクリート造
- 階数/戸数
- 地上14階建て / 130戸
- 管理形態
- -
- 建物設備
- オートロック/宅配BOX/分譲マンションタイプ
- 管理会社
- -
- 施工会社
- -
更新日:2025年12月6日
CREST TAPP平安通の他の空室物件
1
件
お問い合わせお待ちしております!
周辺環境
-
セブンイレブン名古屋上飯田北町店:197m
- コンビニ
-
セブンイレブン名古屋上飯田北町店197m
- 買物
-
Mikawaya上飯田店265m
- ショッピング施設
-
-
- ドラッグストア
-
ウエルシア名古屋上飯田北町店199m
- ホームセンター
-
DCM瑠璃光店914m
- 病院
-
社会医療法人愛生会総合上飯田第一313m
- 役所
-
名古屋市北区役所2279m
- 郵便局
-
名古屋上飯田郵便局311m
- 図書館
-
名古屋市北図書館1794m
- 交番
-
北警察署2236m
- 公園
-
夫婦橋街園464m
- 銀行
-
三十三銀行上飯田支店431m
- 幼稚園
-
上飯田みらいこども園338m
- 小学校
-
名古屋市立宮前小学校786m
- 中学校
-
名古屋市立大曽根中学校825m
- 高校
-
名古屋市立工芸高校2528m
CREST TAPP平安通の近隣物件
生活情報
名古屋市の暮らしデータ
名古屋市は、1871年の廃藩置県で、新政府により名古屋県(翌年愛知県と改称)が設置され、管内を6大区に分けて名古屋と熱田が第1大区とされたのが起源です。その後1878年、名古屋区として初めて独立行政区となり、1889年10月1日の市制施行で、名古屋市は人口15万7,496人、面積約13.34km2でスタートしました。近隣の市町村の編入などもあり、現在では市域326.50km2、人口約230万人の規模となりました。
基本データ
| 市区役所所在地 | 名古屋市中区三の丸3-1-1 |
|---|---|
| 公式ホームページURL | https://www.city.nagoya.jp// |
| 総人口 | 2,332,176人 |
| 人口増減率(2015年/2020年) | 101.6% |
地域のおすすめ情報ブログ
一覧を見る
-
5年振りの友人と…お世話になっております!ピタットハウス本陣店です('◇')ゞどーもどーも!12月入りましたね!2025年ラスト1ヶ月ですか…。早...続きを読む -
地元民はあんまり行かない?金シャチ横丁!お世話になっております!ピタットハウス本陣店です('◇')ゞご無沙汰しております…1件のみ投稿して、更新していませんでした(´;...続きを読む -
【港区】行列のできる中華料理屋!こんにちは!ピタットハウス金山北店です!本日ご紹介するのは港区にある辛い物好きにはおすすめの「中華料理四川」さんです!地元の方に...続きを読む -
【中区】本格中国料理のお店!こんにちは!ピタットハウス金山北店です!本日ご紹介するのは中区新栄で本格中華が食べられる「四川料理川香」さんです!新栄エリアはさ...続きを読む
取扱店舗
有限会社大黒住宅
- 交通
- 名鉄小牧線「小牧口駅」徒歩5分。駐車場もございます。
- 営業時間
- 10:00 〜 18:00
- 定休日
- 毎週水曜日・冬季休業・12月26日〜1月3日まで