68.2万円
店舗
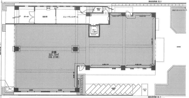
種別 店舗
専有面積 225.70㎡
おすすめ
ポイント
瑞江駅徒歩3分!1階路面店!68.27坪(225.7㎡)
スケルトン引き渡し・重飲食・水商売不可 敷地内駐車場5台契約相談可能(別途契約要)
| 築年月 | 2014年12月 |
|---|---|
| 構造 | 鉄筋コンクリート造 |
| 所在階 | 3階建ての1階 |
| 向き | 南西 |
| バルコニー面積 | - |
| 駐車場 | なし |
| 入居可能日 | 2026年3月31日予定 |
| 賃貸借の種類 | 普通賃貸借 |
| 契約期間 | 5年 |
| 共益費・管理費 | 33,000円 |
| 敷金 | 248万円 |
| 礼金 | 682,000円 |
| 保証金 | - |
| 償却金 | - |
| 更新料 | 更新後賃料:1ヶ月 |
| 保証料等 | 要加入 |
| 保証会社補足 | 【初回保証料】月額総支払額の100%、【月額保証料】月額総支払額の1.5% |
| 取引態様 | 媒介 |
| 情報更新日 | 2026年1月30日 |
| 次回更新予定日 | 2026年2月9日 |
設備・特記
《設備》角部屋/宅配ボックス/都市ガス/BSアンテナ/CSアンテナ
《その他一時金》-
《その他月額費用》-
備考
《バイク置き場》なし
《駐輪場》なし
《その他》看板掲載料月額11,000円(税込) 解約予告 6カ月前
※現状と異なる場合は、現状を優先させていただきます。取引態様の欄に「媒介」と表示された物件は「仲介物件」です。ご成約の際には仲介手数料を申し受けます。