49.5万円
店舗
種別 店舗
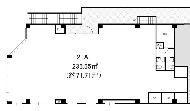
専有面積 236.65㎡
おすすめ
ポイント
匠大塚隣 春日部大通りに面した好立地
大通りに面し好立地、高い視認性が見込めます! 匠大塚隣、春日部文化会館至近! 業種ご相談ください(飲食店不可)
| 築年月 | 1998年1月 |
|---|---|
| 構造 | 重量鉄骨造 |
| 所在階 | 3階建ての2階 |
| 向き | - |
| バルコニー面積 | - |
| 駐車場 | なし |
| 入居可能日 | 2026年2月28日予定 |
| 賃貸借の種類 | 普通賃貸借 |
| 契約期間 | 3年 |
| 共益費・管理費 | - |
| 敷金 | - |
| 礼金 | 495,000円 |
| 保証金 | 1,800,000円 |
| 償却金 | 36.0万円(解約時) |
| 更新料 | - |
| 保証料等 | 要加入 |
| 保証会社補足 | ※保証料要確認 |
| 取引態様 | 媒介 |
| 情報更新日 | 2026年2月5日 |
| 次回更新予定日 | 2026年2月12日 |
設備・特記
《その他一時金》-
《その他月額費用》-
備考
《バイク置き場》なし
《駐輪場》なし
《その他》・賃貸保証会社 加入要(保証料要確認) ・退去時のクリーニング・原状回復費用は借主負担 ・保証金:契約終了時20%償却 ・更新料・更新手数料なし 1F着物京都扇、ボクシングジム 2F事務所
※現状と異なる場合は、現状を優先させていただきます。取引態様の欄に「媒介」と表示された物件は「仲介物件」です。ご成約の際には仲介手数料を申し受けます。