10.7万円
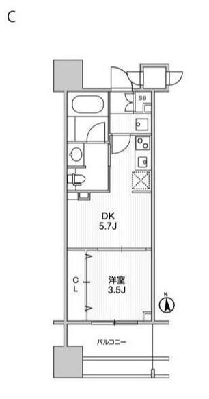
1DK
種別 マンション
専有面積 25.19㎡
おすすめ
ポイント
☆小田急本厚木駅まで平坦な道のりで徒歩圏、通勤通学に便利。
うれしいインターネット使用料無料♪ オートロック完備で女性にも安心。 経済的な都市ガス使用 外観タイル張り 最上階 24時間換気システム
| 築年月 | 2023年8月 |
|---|---|
| 構造 | 鉄筋コンクリート造 |
| 所在階 | 15階建ての15階 |
| 向き | 南 |
| バルコニー面積 | - |
| 駐車場 | なし |
| 入居可能日 | 2026年4月20日予定 |
| 賃貸借の種類 | 普通賃貸借 |
| 契約期間 | 2年 |
| 共益費・管理費 | - |
| 敷金 | - |
| 礼金 | 107,000円 |
| 保証金 | - |
| 償却金 | - |
| 更新料 | 更新後賃料:1ヶ月 |
| 保証料等 | - |
| 保証会社補足 | 要確認 |
| 取引態様 | 媒介 |
| 情報更新日 | 2026年4月11日 |
| 次回更新予定日 | 2026年4月18日 |
設備・特記
《設備》フローリング/バルコニー/室内洗濯機置場/照明器具/複層ガラス/24時間換気システム/バス・トイレ別/浴室乾燥機/独立洗面台/温水洗浄便座/シャワー/トイレ/エアコン/BSアンテナ/CSアンテナ/最上階/外壁タイル張り/エレベータ/宅配ボックス/都市ガス/エレベーター2基以上/システムキッチン/ガスコンロ(2口)
《物件の特徴》ルームシェア不可
《その他一時金》鍵交換費:24200円 / Goodプレミアムα(24Hサポートのみ):16500円 / 住宅総合保険(フレックス):22000円 / Goodプレミアムα登録料:3300円
《その他月額費用》-
備考
《バイク置き場》なし
《駐輪場》なし
《その他》Goodプレミアムα(24Hサポートのみ):16,500円、 住宅総合保険(フレックス):22,000円、 Goodプレミアムα登録料:3,300円
※現状と異なる場合は、現状を優先させていただきます。取引態様の欄に「媒介」と表示された物件は「仲介物件」です。ご成約の際には仲介手数料を申し受けます。