12.4万円
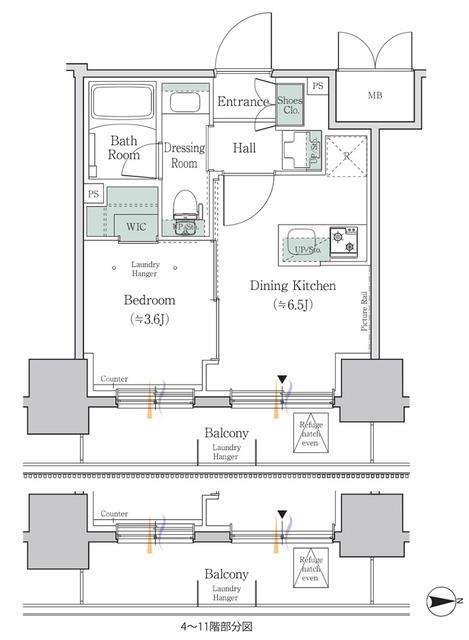
1DK
種別 マンション
専有面積 25.39㎡
おすすめ
ポイント
築年月 | 2023年12月 |
---|---|
構造 | 鉄筋コンクリート造 |
所在階 | 12階建ての8階 |
向き | 東 |
バルコニー面積 | 5.00㎡ |
駐車場 | なし |
入居可能日 | 2025年12月16日予定 |
賃貸借の種類 | 定期賃貸借 |
契約期間 | 2年 |
共益費・管理費 | 12,000円 |
敷金 | 12.4万円 |
礼金 | - |
保証金 | - |
償却金 | - |
更新料 | - |
保証料等 | 要加入 |
保証会社補足 | 初回保証委託料(最低15,000円):月額賃料等の50%、 2年目以降:10,000円/年 |
取引態様 | 媒介 |
情報更新日 | 2025年10月18日 |
次回更新予定日 | 2025年10月29日 |
設備・特記
《設備》エレベータ/宅配ボックス/敷地内ごみ置き場/バイク置場/BSアンテナ/CSアンテナ/オートロック/エアコン/バス・トイレ別/浴室乾燥機/独立洗面台/フローリング/バルコニー/室内洗濯機置場/ウォークインクロゼット/システムキッチン
《物件の特徴》ペット相談可/事務所利用不可
《その他一時金》室内清掃費:44000円 / 鍵交換費:22000円
《その他月額費用》口座振替事務手数料:110円/月
備考
※現状と異なる場合は、現状を優先させていただきます。取引態様の欄に「媒介」と表示された物件は「仲介物件」です。ご成約の際には仲介手数料を申し受けます。