38.63万円
事務所
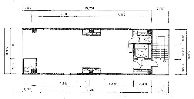
種別 事務所
専有面積 85.99㎡
おすすめ
ポイント
中央通り目の前セキュリティー設備管理24時間使用可能な事務所
JR秋葉原駅からも徒歩圏内で複数路線使用可能な便利な場所に位置しています!裏側の非常階段からはスカイツリーがはっきり望み夕方からの眺望も楽しみです。 秋にはイチョウが色好き黄金色の中央通りを楽しめます
| 築年月 | 1989年4月 |
|---|---|
| 構造 | 重量鉄骨造 |
| 所在階 | 地下1階・地上9階建ての8階 |
| 向き | - |
| バルコニー面積 | - |
| 駐車場 | なし |
| 入居可能日 | 2026年2月15日予定 |
| 賃貸借の種類 | 普通賃貸借 |
| 契約期間 | 2年 |
| 共益費・管理費 | 100,139円 |
| 敷金 | - |
| 礼金 | - |
| 保証金 | 2,106,810円 |
| 償却金 | 77.2万円(解約時) |
| 更新料 | 更新後賃料:1ヶ月 |
| 保証料等 | 要加入(2年25000円) |
| 保証会社補足 | 初回総賃料100%/月次1% |
| 取引態様 | 媒介 |
| 情報更新日 | 2026年2月6日 |
| 次回更新予定日 | 2026年2月21日 |
設備・特記
《設備》洗面化粧台/トイレ/エアコン2台以上/24時間セキュリティー/インターネット対応/外壁タイル張り/エレベータ/バルコニー/陽当り良好/24時間換気システム/眺望良好
《物件の特徴》保証人不要
《その他一時金》-
《その他月額費用》-
備考
《バイク置き場》なし
《駐輪場》なし
※現状と異なる場合は、現状を優先させていただきます。取引態様の欄に「媒介」と表示された物件は「仲介物件」です。ご成約の際には仲介手数料を申し受けます。