7.8万円
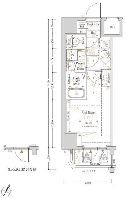
1K
種別 マンション
専有面積 20.86㎡
おすすめ
ポイント
ペット可オートロックマンション♪
不動産のことならピタットハウスにお任せください! クレジット決済、入居審査、契約金の相談等なんでもお気軽にご相談ください。 ご来店のお客様用、フリードリンクあります!
| 築年月 | 2019年8月 |
|---|---|
| 構造 | 鉄筋コンクリート造 |
| 所在階 | 11階建ての2階 |
| 向き | 南東 |
| バルコニー面積 | - |
| 駐車場 | なし |
| 入居可能日 | 即可 |
| 賃貸借の種類 | 普通賃貸借 |
| 契約期間 | 2年 |
| 共益費・管理費 | 10,000円 |
| 敷金 | ペット積み増し(15.6万円) |
| 礼金 | - |
| 保証金 | - |
| 償却金 | - |
| 更新料 | 更新後賃料:1ヶ月 |
| 保証料等 | 要加入(2年20000円) |
| 保証会社補足 | 初回保証料:賃料等50%、月額保証料:1000円 |
| 取引態様 | 媒介 |
| 情報更新日 | 2026年1月15日 |
| 次回更新予定日 | 2026年1月22日 |
設備・特記
《設備》インターネット対応/CATV/BSアンテナ/CSアンテナ/光回線/角部屋/分譲マンションタイプ/エレベータ/宅配ボックス/駐輪場/都市ガス/敷地内ごみ置き場/システムキッチン/ガスコンロ(2口)/フローリング/バルコニー/室内洗濯機置場/下駄箱/クローゼット/陽当り良好/バス・トイレ別/浴室乾燥機/洗髪洗面化粧台/独立洗面台/温水洗浄便座/シャワー/洗面化粧台/エアコン/オートロック/TVモニター付きインターホン/防犯カメラ
《物件の特徴》ペット相談可/保証会社利用可/保証人不要/初期費用カード決済可
《その他一時金》鍵交換費用:55000円 / 事務手数料:11000円 / 除菌消臭:16500円 / 退去時クリーニング費用:55000円 / 退去時エアコンクリーニング費用:16500円
《その他月額費用》緊急サポート:980円/月
備考
《クレジットカード決済》初期費用クレジット決済可
《その他》短期解約違約金(2年未満総賃料の1ヶ月/1年未満総賃料の2ヶ月) ペット可(小型犬・猫1匹まで)敷金2ヶ月/償却
※現状と異なる場合は、現状を優先させていただきます。取引態様の欄に「媒介」と表示された物件は「仲介物件」です。ご成約の際には仲介手数料を申し受けます。