7.1万円
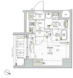
1K
種別 マンション
専有面積 20.81㎡
おすすめ
ポイント
インターネット無料♪ オートロック♪
不動産のことならピタットハウスにお任せください! お探しの地域の治安・お買い物情報、入居審査、契約金の相談等なんでもお気軽にご相談ください。 店内にフリードリンクあります!
| 築年月 | 2019年2月 |
|---|---|
| 構造 | 鉄筋コンクリート造 |
| 所在階 | 10階建ての8階 |
| 向き | 南東 |
| バルコニー面積 | - |
| 駐車場 | なし |
| 入居可能日 | 2026年1月10日予定 |
| 賃貸借の種類 | 普通賃貸借 |
| 契約期間 | 2年 |
| 共益費・管理費 | 10,000円 |
| 敷金 | 7.1万円 + ペット積み増し(7.1万円) |
| 礼金 | - |
| 保証金 | - |
| 償却金 | - |
| 更新料 | 更新後賃料:1ヶ月 |
| 保証料等 | 要加入(2年20000円) |
| 保証会社補足 | 初回保証料:賃料等40% |
| 取引態様 | 媒介 |
| 情報更新日 | 2025年11月15日 |
| 次回更新予定日 | 2025年11月22日 |
設備・特記
《設備》オートロック/TVモニター付きインターホン/防犯カメラ/エアコン/バス・トイレ別/浴室乾燥機/洗髪洗面化粧台/独立洗面台/温水洗浄便座/シャワー/洗面化粧台/フローリング/バルコニー/室内洗濯機置場/下駄箱/クローゼット/照明器具/システムキッチン/ガスコンロ(2口)/角部屋/分譲マンションタイプ/エレベータ/宅配ボックス/駐輪場/都市ガス/敷地内ごみ置き場/インターネット対応/インターネット無料/BSアンテナ/CSアンテナ/光回線
《物件の特徴》保証会社利用可/二人入居可/保証人不要/初期費用カード決済可
《その他一時金》鍵交換費用:27500円 / 24hサポート:16500円 / 書類作成費:5500円
《その他月額費用》-
備考
《クレジットカード決済》初期費用クレジット決済可
《その他》ペット飼育時敷金2ヶ月(1ヶ月償却)
※現状と異なる場合は、現状を優先させていただきます。取引態様の欄に「媒介」と表示された物件は「仲介物件」です。ご成約の際には仲介手数料を申し受けます。