13.03万円
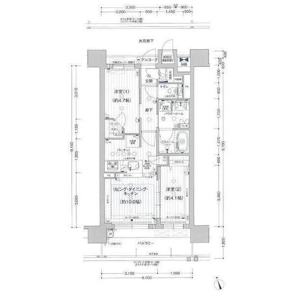
2LDK
種別 マンション
専有面積 47.72㎡
おすすめ
ポイント
お部屋探しは、ピタットハウス名古屋駅北店で♪
敷金(保証金)0円。アクセスのよい浅間町駅徒歩3分だから、職場や学校の行き来が負担になりません。
| 築年月 | 2024年9月 |
|---|---|
| 構造 | 鉄筋コンクリート造 |
| 所在階 | 15階建ての14階 |
| 向き | 南 |
| バルコニー面積 | - |
| 駐車場 | なし |
| 入居可能日 | 相談 |
| 賃貸借の種類 | 普通賃貸借 |
| 契約期間 | 2年 |
| 共益費・管理費 | 11,740円 |
| 敷金 | - |
| 礼金 | 13,900円 |
| 保証金 | - |
| 償却金 | - |
| 更新料 | 11,000円 |
| 保証料等 | 要加入(1年11000円) |
| 保証会社補足 | 要確認 |
| 取引態様 | 媒介 |
| 情報更新日 | 2026年2月10日 |
| 次回更新予定日 | 2026年2月18日 |
設備・特記
《設備》システムキッチン/エレベータ/都市ガス/CATV/BSアンテナ/オートロック/TVモニター付きインターホン/24時間セキュリティー/モニタ付オートロック/防犯カメラ/エアコン/床暖房/浴室乾燥機/追い焚き風呂/洗髪洗面化粧台/温水洗浄便座/室内洗濯機置場/下駄箱/クローゼット/24時間換気システム
《物件の特徴》敷金不要/保証金不要
《その他一時金》カギ交換代:35200円 / 退去時ハウスクリーニング代:45000円
《その他月額費用》プレサポ24:990円/月
備考
《その他》敷金(保証金)0円。アクセスのよい浅間町駅徒歩3分だから、職場や学校の行き来が負担になりません。また昼夜を問わず対応する24時間セキュリティー採用で、その上合理的なシステムキッチン仕様なので、無駄や隙がありません。ちなみに美容グッズの収納場所にもなるシャンプードレッサー付です。家族が帰宅を焦がれる2LDK。是非見学にお越しください。
※現状と異なる場合は、現状を優先させていただきます。取引態様の欄に「媒介」と表示された物件は「仲介物件」です。ご成約の際には仲介手数料を申し受けます。