30.96万円
事務所
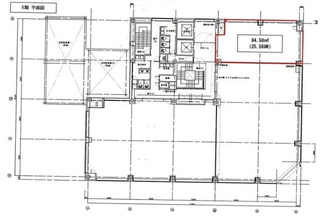
種別 事務所
専有面積 84.58㎡
おすすめ
ポイント
約25.58坪
機械式駐車場契約可能全99台(空き確認要) 個別空調 エレベーター2基 有人警備+機械警備 天井高2600㎜ 床:OAフロア(50㎜) 床荷重300㎏/㎡ 電気容量45VA/㎡ 通信:光ケーブル引込済
| 築年月 | 1996年7月 |
|---|---|
| 構造 | 鉄骨造・一部鉄筋コンクリート造 |
| 所在階 | 9階建ての5階 |
| 向き | - |
| バルコニー面積 | - |
| 駐車場 | なし |
| 入居可能日 | 相談 |
| 賃貸借の種類 | 普通賃貸借 |
| 契約期間 | 2年 |
| 共益費・管理費 | - |
| 敷金 | 337.656万円 |
| 礼金 | - |
| 保証金 | - |
| 償却金 | - |
| 更新料 | - |
| 保証料等 | 要加入 |
| 保証会社補足 | - |
| 取引態様 | 媒介 |
| 情報更新日 | 2025年11月30日 |
| 次回更新予定日 | 2025年12月7日 |
設備・特記
《その他一時金》-
《その他月額費用》-
備考
※現状と異なる場合は、現状を優先させていただきます。取引態様の欄に「媒介」と表示された物件は「仲介物件」です。ご成約の際には仲介手数料を申し受けます。