6.3万円
1LDK
種別 アパート
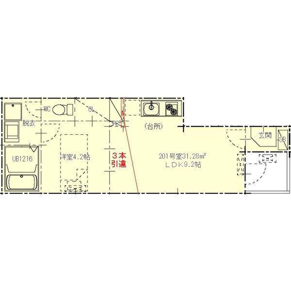
専有面積 31.28㎡
おすすめ
ポイント
東山線「中村日赤」徒歩8分
○床下収納8.4○ 24時間換気システム ○ フローリング ○ 室内物干 ○ 日当たり良好
| 築年月 | 2019年3月 |
|---|---|
| 構造 | 木造 |
| 所在階 | 3階建ての2階 |
| 向き | 北 |
| バルコニー面積 | - |
| 駐車場 | なし |
| 入居可能日 | 相談 |
| 賃貸借の種類 | 普通賃貸借 |
| 契約期間 | 2年 |
| 共益費・管理費 | 4,000円 |
| 敷金 | - |
| 礼金 | 63,000円 |
| 保証金 | - |
| 償却金 | - |
| 更新料 | 33,000円 |
| 保証料等 | 要加入(2年18000円) |
| 保証会社補足 | (連帯保証人有プラン 初回保証料:30,000円)(連帯保証人無プラン 初回保証料:50,000円) |
| 取引態様 | 媒介 |
| 情報更新日 | 2026年1月19日 |
| 次回更新予定日 | 2026年1月28日 |
設備・特記
《設備》エアコン2台以上/バス・トイレ別/浴室乾燥機/追い焚き風呂/温水洗浄便座/フローリング/バルコニー/室内洗濯機置場/下駄箱/クローゼット/室内物干し/ガスコンロ(2口)/グリル/角部屋/宅配ボックス/プロパンガス/敷地内ごみ置き場/インターネット無料/オートロック/TVモニター付きインターホン
《物件の特徴》即入居可/敷金不要/保証人不要
《その他一時金》エアコン清掃費用 / 退去時 / 1台につき:11000円 / 退去時クリーニング代 / / 退去時精算可:46200円 / インターネット開通サービス:16500円 / 鍵交換代:22000円 / シノサポ24(2年) / :17600円
《その他月額費用》町内会費 月額:300円/月
備考
《その他》シノケン電気の利用が必須となります。(個人契約のみ) 仲介会社様より一律11,000円(税込)の契約事務手数料を受領致します。 シノケンシリーズ物件 / 外国籍、水商売相談可能 / 短期違約金1年未満2ヶ月、1年以上2年未満1ヶ月 / 解約予告2ヶ月前 / 法人契約の場合、敷金1ヶ月(保証会社なしの場合)・更新料1ヶ月・解約予告2ヶ月→1ヶ月に変更可能・短期解約違約金は礼金1ヶ月上乗せで削除可能
※現状と異なる場合は、現状を優先させていただきます。取引態様の欄に「媒介」と表示された物件は「仲介物件」です。ご成約の際には仲介手数料を申し受けます。