15.3万円
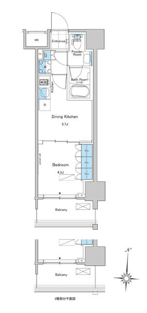
1DK
種別 マンション
専有面積 26.84㎡
おすすめ
ポイント
清澄白河駅徒歩4分の地上11階建てマンションです
ルフォンプログレ清澄白河プレミアは2019年築のきれいなマンションです! 1DKタイプ(26.84㎡)単身者様に適した間取りです!
築年月 | 2019年10月 |
---|---|
構造 | 鉄筋コンクリート造 |
所在階 | 11階建ての5階 |
向き | 南 |
バルコニー面積 | 4.00㎡ |
駐車場 | なし |
入居可能日 | 2025年12月6日予定 |
賃貸借の種類 | 普通賃貸借 |
契約期間 | 2年 |
共益費・管理費 | 10,000円 |
敷金 | 15.3万円 |
礼金 | 153,000円 |
保証金 | - |
償却金 | - |
更新料 | 更新後賃料:1ヶ月 |
保証料等 | 要加入 |
保証会社補足 | 初回保証委託料(最低15,000円):月額賃料等の50%、 2年目以降:10,000円/年 |
取引態様 | 媒介 |
情報更新日 | 2025年10月21日 |
次回更新予定日 | 2025年10月29日 |
設備・特記
《設備》エレベータ/宅配ボックス/敷地内ごみ置き場/常時ゴミ出し可能/バイク置場/インターネット対応/CATV/BSアンテナ/CSアンテナ/オートロック/モニタ付オートロック/エアコン/バス・トイレ別/浴室乾燥機/独立洗面台/フローリング/バルコニー/室内洗濯機置場/システムキッチン
《物件の特徴》ペット相談可/事務所利用不可
《その他一時金》室内清掃費:44000円 / 鍵交換費:22000円
《その他月額費用》口座振替事務手数料:110円/月
備考
※現状と異なる場合は、現状を優先させていただきます。取引態様の欄に「媒介」と表示された物件は「仲介物件」です。ご成約の際には仲介手数料を申し受けます。