23.1万円
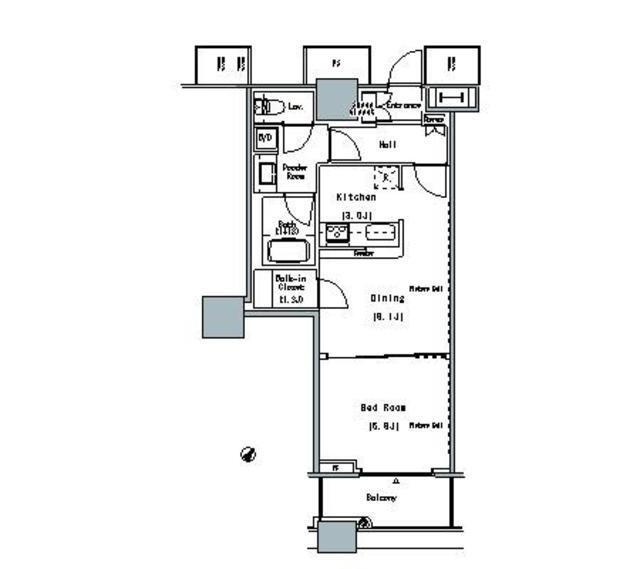
1DK
種別 マンション
専有面積 48.10㎡
おすすめ
ポイント
勝どき駅徒歩6分の地上58階建てマンションです
THE TOKYO TOWERS MIDTOWERは2008年築のおすすめマンションです!1DK(48.1㎡)ゆとりのある単身者様向けの間取りです。
築年月 | 2008年1月 |
---|---|
構造 | 鉄筋コンクリート造 |
所在階 | 58階建ての22階 |
向き | 南東 |
バルコニー面積 | 5.00㎡ |
駐車場 | なし |
入居可能日 | 2025年12月15日予定 |
賃貸借の種類 | 普通賃貸借 |
契約期間 | 2年 |
共益費・管理費 | 10,000円 |
敷金 | 46.2万円 |
礼金 | 231,000円 |
保証金 | - |
償却金 | - |
更新料 | 更新後賃料:1ヶ月 |
保証料等 | 要加入 |
保証会社補足 | 初回保証委託料(最低20,000円):月額賃料等の50%、2年目以降:10,000円/年 |
取引態様 | 媒介 |
情報更新日 | 2025年10月21日 |
次回更新予定日 | 2025年10月28日 |
設備・特記
《設備》エレベータ/宅配ボックス/フロントサービス/敷地内ごみ置き場/常時ゴミ出し可能/タワー型マンション/バイク置場/インターネット対応/CATV/オートロック/エアコン/バス・トイレ別/浴室乾燥機/追い焚き風呂/フローリング/バルコニー/室内洗濯機置場/ウォークインクロゼット/システムキッチン/グリル
《物件の特徴》ペット相談可/ピアノ相談可/事務所利用不可
《その他一時金》-
《その他月額費用》-
備考
※現状と異なる場合は、現状を優先させていただきます。取引態様の欄に「媒介」と表示された物件は「仲介物件」です。ご成約の際には仲介手数料を申し受けます。