36.1万円
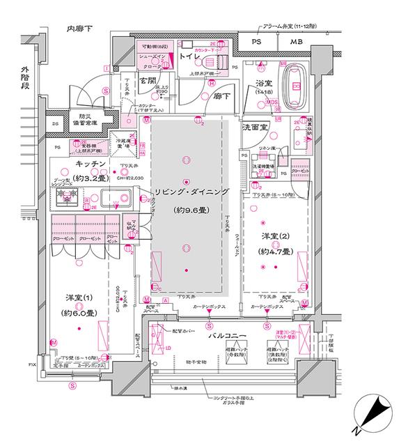
2LDK
種別 マンション
専有面積 55.38㎡
おすすめ
ポイント
新富町駅徒歩7分の地上12階建てマンションです
オーパスレジデンス銀座イーストは2021年築のきれいなマンションです! 2LDK(55.38㎡)ご夫婦やファミリー向けの間取りです。
| 築年月 | 2021年1月 |
|---|---|
| 構造 | 鉄筋コンクリート造 |
| 所在階 | 12階建ての11階 |
| 向き | 北西 |
| バルコニー面積 | 7.00㎡ |
| 駐車場 | なし |
| 入居可能日 | 2025年12月16日予定 |
| 賃貸借の種類 | 定期賃貸借 |
| 契約期間 | 2年 |
| 共益費・管理費 | 15,000円 |
| 敷金 | 36.1万円 |
| 礼金 | - |
| 保証金 | - |
| 償却金 | - |
| 更新料 | - |
| 保証料等 | 要加入 |
| 保証会社補足 | 初回保証委託料(最低15,000円):月額賃料等の50%、 2年目以降:10,000円/年 |
| 取引態様 | 媒介 |
| 情報更新日 | 2025年10月23日 |
| 次回更新予定日 | 2025年11月1日 |
設備・特記
《設備》フローリング/バルコニー/室内洗濯機置場/システムキッチン/食器乾燥機/食器洗浄乾燥機/グリル/エレベータ/宅配ボックス/敷地内ごみ置き場/常時ゴミ出し可能/CATV/BSアンテナ/CSアンテナ/オートロック/モニタ付オートロック/エアコン/床暖房/バス・トイレ別/浴室乾燥機/追い焚き風呂/独立洗面台
《物件の特徴》ペット相談可/事務所利用不可
《その他一時金》室内清掃費:85285円 / 鍵交換費:22000円
《その他月額費用》口座振替事務手数料:110円/月
備考
※現状と異なる場合は、現状を優先させていただきます。取引態様の欄に「媒介」と表示された物件は「仲介物件」です。ご成約の際には仲介手数料を申し受けます。