11.9万円
1K
種別 マンション
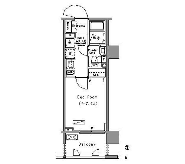
専有面積 24.40㎡
おすすめ
ポイント
住吉駅徒歩6分の地上7階建てマンションです
パークアクシス住吉は2009年築のおすすめマンションです!1Kタイプ(24.4㎡)の単身者様向けの間取りです!
| 築年月 | 2009年5月 |
|---|---|
| 構造 | 鉄筋コンクリート造 |
| 所在階 | 7階建ての7階 |
| 向き | 北 |
| バルコニー面積 | 5.00㎡ |
| 駐車場 | なし |
| 入居可能日 | 相談 |
| 賃貸借の種類 | 普通賃貸借 |
| 契約期間 | 2年 |
| 共益費・管理費 | 8,000円 |
| 敷金 | 11.9万円 |
| 礼金 | - |
| 保証金 | - |
| 償却金 | - |
| 更新料 | 更新後賃料:1ヶ月 |
| 保証料等 | 要加入 |
| 保証会社補足 | 初回保証委託料(最低20,000円):月額賃料等の50%、 2年目以降:9,600円/年 |
| 取引態様 | 媒介 |
| 情報更新日 | 2025年11月20日 |
| 次回更新予定日 | 2025年12月2日 |
設備・特記
《設備》エアコン/オートロック/インターネット対応/CATV/BSアンテナ/CSアンテナ/CATVインターネット/エレベータ/宅配ボックス/敷地内ごみ置き場/バイク置場/システムキッチン/バルコニー/室内洗濯機置場/バス・トイレ別/浴室乾燥機
《物件の特徴》ペット相談可/ピアノ相談可/事務所利用不可
《その他一時金》室内清掃費:55000円 / 鍵交換費:16500円
《その他月額費用》口座振替事務手数料:110円/月
備考
※現状と異なる場合は、現状を優先させていただきます。取引態様の欄に「媒介」と表示された物件は「仲介物件」です。ご成約の際には仲介手数料を申し受けます。