13.2万円
1K
種別 マンション
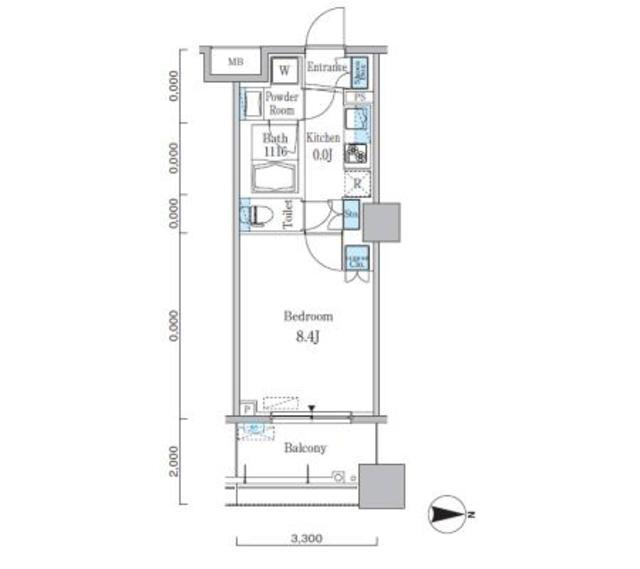
専有面積 28.27㎡
おすすめ
ポイント
亀戸駅徒歩5分の地上13階建てマンションです
パークキューブ亀戸は2007年築のおすすめマンションです!1Kタイプ(28.27㎡)の広々とした間取りです!
| 築年月 | 2007年9月 |
|---|---|
| 構造 | 鉄筋コンクリート造 |
| 所在階 | 13階建ての11階 |
| 向き | 東 |
| バルコニー面積 | - |
| 駐車場 | 有り 月額26,400円 |
| 入居可能日 | 2026年4月30日予定 |
| 賃貸借の種類 | 普通賃貸借 |
| 契約期間 | 2年 |
| 共益費・管理費 | 8,000円 |
| 敷金 | 13.2万円 |
| 礼金 | 132,000円 |
| 保証金 | - |
| 償却金 | - |
| 更新料 | 更新後賃料:1ヶ月 |
| 保証料等 | 要加入 |
| 保証会社補足 | 初回保証委託料(最低20,000円):月額賃料等の50%、 2年目以降:9,600円/年 |
| 取引態様 | 媒介 |
| 情報更新日 | 2026年3月9日 |
| 次回更新予定日 | 2026年3月16日 |
設備・特記
《設備》バス・トイレ別/浴室乾燥機/追い焚き風呂/独立洗面台/フローリング/バルコニー/室内洗濯機置場/システムキッチン/エレベータ/宅配ボックス/敷地内駐車場/耐震構造/敷地内ごみ置き場/常時ゴミ出し可能/バイク置場/インターネット対応/CATV/CSアンテナ/オートロック/モニタ付オートロック/エアコン
《物件の特徴》ペット相談可/事務所利用不可
《その他一時金》室内清掃費:55000円 / 鍵交換費:16500円
《その他月額費用》口座振替事務手数料:220円/月
備考
※現状と異なる場合は、現状を優先させていただきます。取引態様の欄に「媒介」と表示された物件は「仲介物件」です。ご成約の際には仲介手数料を申し受けます。