12.3万円
1K
種別 マンション
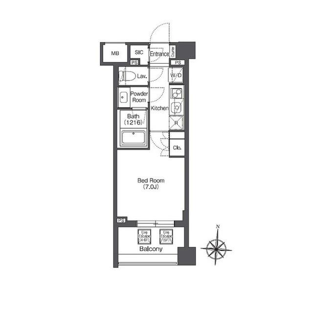
専有面積 25.38㎡
おすすめ
ポイント
本所吾妻橋駅徒歩4分の地上7階建てマンションです
ORSUS HONJOAZUMABASHIは2021年築のきれいなマンションです! 1Kタイプ(25.38㎡)の単身者様向けの間取りです!
| 築年月 | 2021年6月 |
|---|---|
| 構造 | 鉄筋コンクリート造 |
| 所在階 | 7階建ての4階 |
| 向き | 南 |
| バルコニー面積 | - |
| 駐車場 | なし |
| 入居可能日 | 2026年1月20日予定 |
| 賃貸借の種類 | 普通賃貸借 |
| 契約期間 | 2年 |
| 共益費・管理費 | 5,000円 |
| 敷金 | 12.3万円 |
| 礼金 | 123,000円 |
| 保証金 | - |
| 償却金 | - |
| 更新料 | 更新後賃料:1ヶ月 |
| 保証料等 | 要加入(2年16550円) |
| 保証会社補足 | エポスカード(RP) 保証料:賃料等の50%(最低2万)、月額保証料:賃料等の1%(更新料無) |
| 取引態様 | 媒介 |
| 情報更新日 | 2025年11月25日 |
| 次回更新予定日 | 2025年12月1日 |
設備・特記
《設備》エレベータ/宅配ボックス/駐輪場/常時ゴミ出し可能/インターネット無料/オートロック/防犯カメラ/エアコン/追い焚き風呂/独立洗面台/温水洗浄便座/フローリング/室内洗濯機置場
《その他一時金》鍵交換代:22000円 / 清掃費:38500円 / エアコン清掃費:11000円
《その他月額費用》-
備考
《その他》■指定保証会社利用必須※法人契約等保証会社利用不可の場合:敷金2ヶ月■解約時室内及びエアコンクリーニング費用借主負担■ペット飼育・楽器演奏不可、事務所・SOHO利用不可■付随設備に関する費用・空き状況等は要確認■鍵交換代:22,000円(税込)
※現状と異なる場合は、現状を優先させていただきます。取引態様の欄に「媒介」と表示された物件は「仲介物件」です。ご成約の際には仲介手数料を申し受けます。