22.7万円
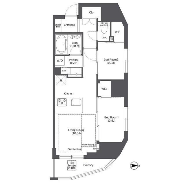
2LDK
種別 マンション
専有面積 44.64㎡
おすすめ
ポイント
新御徒町駅徒歩4分の地上14階建てマンションです
コンフォリア新御徒町は2019年築のきれいなマンションです! 2LDKタイプ(44.64㎡)単身者やご夫婦向けの間取です。
| 築年月 | 2019年8月 |
|---|---|
| 構造 | 鉄筋コンクリート造 |
| 所在階 | 14階建ての9階 |
| 向き | 東 |
| バルコニー面積 | - |
| 駐車場 | なし |
| 入居可能日 | 2026年1月20日予定 |
| 賃貸借の種類 | 普通賃貸借 |
| 契約期間 | 2年 |
| 共益費・管理費 | 10,000円 |
| 敷金 | 22.7万円 |
| 礼金 | - |
| 保証金 | - |
| 償却金 | - |
| 更新料 | 更新後賃料:1ヶ月 |
| 保証料等 | 要加入(2年16550円) |
| 保証会社補足 | エポスカード(RP) 保証料:賃料等の50%(最低2万)、月額保証料:賃料等の1%(更新料無) |
| 取引態様 | 媒介 |
| 情報更新日 | 2025年11月28日 |
| 次回更新予定日 | 2025年12月4日 |
設備・特記
《設備》バス・トイレ別/追い焚き風呂/洗髪洗面化粧台/独立洗面台/温水洗浄便座/TV付浴室/エアコン/床暖房/オートロック/TVモニター付きインターホン/防犯カメラ/CATV/外壁タイル張り/エレベータ/宅配ボックス/駐輪場/常時ゴミ出し可能/バイク置場/システムキッチン/フローリング/室内洗濯機置場/ウォークインクロゼット
《物件の特徴》ペット相談可
《その他一時金》鍵交換代:33000円 / 清掃費:47960円 / エアコン清掃費:22000円
《その他月額費用》-
備考
《その他》ペット飼育又は大手法人契約等保証会社利用不可の場合:敷金2ヶ月、解約時室内及びエアコンクリーニング費用借主負担、楽器演奏不可、ペット相談、付随設備に関する費用・空き状況等は要確認
※現状と異なる場合は、現状を優先させていただきます。取引態様の欄に「媒介」と表示された物件は「仲介物件」です。ご成約の際には仲介手数料を申し受けます。