12.8万円
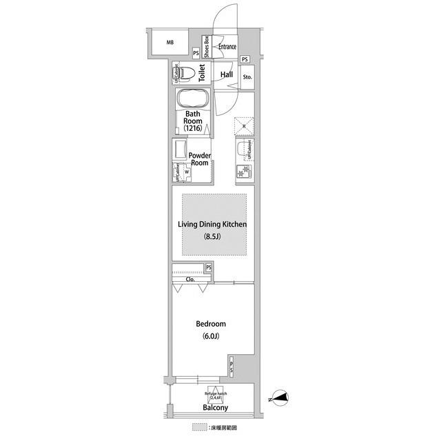
1LDK
種別 マンション
専有面積 35.37㎡
おすすめ
ポイント
大塚駅徒歩12分の地上9階建てマンションです
BLESS西巣鴨は2015年築のきれいなマンションです! 1LDKタイプ(35.37㎡)単身者様に適した間取りです!
| 築年月 | 2015年1月 |
|---|---|
| 構造 | 鉄筋コンクリート造 |
| 所在階 | 9階建ての4階 |
| 向き | 西 |
| バルコニー面積 | - |
| 駐車場 | なし |
| 入居可能日 | 2025年12月20日予定 |
| 賃貸借の種類 | 普通賃貸借 |
| 契約期間 | 2年 |
| 共益費・管理費 | 10,000円 |
| 敷金 | 12.8万円 |
| 礼金 | 192,000円 |
| 保証金 | - |
| 償却金 | - |
| 更新料 | 更新後賃料:1ヶ月 |
| 保証料等 | 要加入(2年16550円) |
| 保証会社補足 | エポスカード(RP) 保証料:賃料等の50%(最低2万)、月額保証料:賃料等の1%(更新料無) |
| 取引態様 | 媒介 |
| 情報更新日 | 2025年11月6日 |
| 次回更新予定日 | 2025年11月12日 |
設備・特記
《設備》オートロック/防犯カメラ/エアコン/床暖房/浴室乾燥機/温水洗浄便座/エレベータ/宅配ボックス/駐輪場/その他インターネット
《物件の特徴》ペット相談可
《その他一時金》鍵交換代:33000円 / 清掃費:44000円 / エアコン清掃費:22000円
《その他月額費用》-
備考
《その他》保証会社必須■不可(石油ストーブ・楽器・事務所・SOHO・登記・私物放置)■解約予告2ヶ月■館内規約遵守■インフラ、通信はNTT等へ事前諸手続(既存設備のみ)■鍵交換ではなく入居前メンテナンス費用■シリンダー部分の電池交換は借主負担(1年ごとの電池交換必須)■経年の為現況有姿(室内床鳴・玄関ドア開閉)■ペット相談可能(敷金2ヶ月、敷金1ヶ月償却)
※現状と異なる場合は、現状を優先させていただきます。取引態様の欄に「媒介」と表示された物件は「仲介物件」です。ご成約の際には仲介手数料を申し受けます。