16.3万円
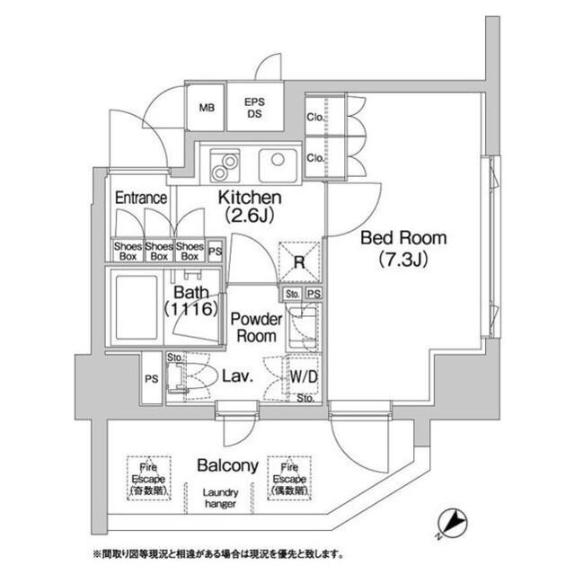
1K
種別 マンション
専有面積 26.03㎡
おすすめ
ポイント
牛込神楽坂駅徒歩2分の地上13階建てマンションです
コンフォリア神楽坂DEUXは2013年築のおすすめマンションです!1Kタイプ(26.03㎡)の広々とした間取りです!
| 築年月 | 2013年11月 |
|---|---|
| 構造 | 鉄筋コンクリート造 |
| 所在階 | 13階建ての12階 |
| 向き | 北西 |
| バルコニー面積 | - |
| 駐車場 | なし |
| 入居可能日 | 2025年12月20日予定 |
| 賃貸借の種類 | 普通賃貸借 |
| 契約期間 | 2年 |
| 共益費・管理費 | 8,000円 |
| 敷金 | 16.3万円 |
| 礼金 | - |
| 保証金 | - |
| 償却金 | - |
| 更新料 | 更新後賃料:1ヶ月 |
| 保証料等 | 要加入(2年16550円) |
| 保証会社補足 | エポスカード(RP) 保証料:賃料等の50%(最低2万)、月額保証料:賃料等の1%(更新料無) |
| 取引態様 | 媒介 |
| 情報更新日 | 2025年12月17日 |
| 次回更新予定日 | 2025年12月23日 |
設備・特記
《設備》システムキッチン/室内洗濯機置場/バス・トイレ別/浴室乾燥機/追い焚き風呂/独立洗面台/エアコン/オートロック/TVモニター付きインターホン/防犯カメラ/CATV/光回線/エレベータ/宅配ボックス/駐輪場/常時ゴミ出し可能/バイク置場
《物件の特徴》ペット相談可
《その他一時金》鍵交換代:33000円 / 清掃費:33000円 / エアコン清掃費:11000円
《その他月額費用》-
備考
《その他》都営大江戸線/牛込神楽坂駅 徒歩2分 東京メトロ東西線/神楽坂駅 徒歩6分 総武・中央線/飯田橋駅 徒歩12分 ■礼金0■1年以内解約時賃料1か月分違約金有 ■指定保証会社利用必須※一部法人契約除(敷金1ヶ月積増) ■留学生本人契約可能(GTN利用必須)所定審査有 ■ペット飼育敷金1ヶ月積増※使用細則等遵守
※現状と異なる場合は、現状を優先させていただきます。取引態様の欄に「媒介」と表示された物件は「仲介物件」です。ご成約の際には仲介手数料を申し受けます。