12.3万円
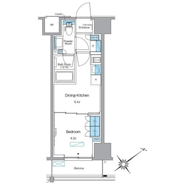
1DK
種別 マンション
専有面積 25.29㎡
おすすめ
ポイント
下赤塚駅徒歩2分の地上13階建てマンションです
ルフォンプログレ赤塚は2020年築のきれいなマンションです! 1DKタイプ(25.29㎡)の単身者様向けの間取りです!
| 築年月 | 2020年11月 |
|---|---|
| 構造 | 鉄筋コンクリート造 |
| 所在階 | 13階建ての9階 |
| 向き | 南東 |
| バルコニー面積 | - |
| 駐車場 | なし |
| 入居可能日 | 2026年2月20日予定 |
| 賃貸借の種類 | 普通賃貸借 |
| 契約期間 | 2年 |
| 共益費・管理費 | 10,000円 |
| 敷金 | 12.3万円 |
| 礼金 | 123,000円 |
| 保証金 | - |
| 償却金 | - |
| 更新料 | 更新後賃料:1ヶ月 |
| 保証料等 | 要加入(2年16550円) |
| 保証会社補足 | レジデンシャルパートナーズ 保証料:賃料等の50%(最低2万)、月額保証・事務手数料:賃料等の1%(更新料無) |
| 取引態様 | 媒介 |
| 情報更新日 | 2025年12月16日 |
| 次回更新予定日 | 2025年12月22日 |
設備・特記
《設備》エアコン/追い焚き風呂/独立洗面台/温水洗浄便座/フローリング/宅配ボックス/駐輪場/常時ゴミ出し可能/バイク置場/インターネット無料/光回線/オートロック/TVモニター付きインターホン/防犯カメラ
《物件の特徴》ペット相談可
《その他一時金》鍵交換代:33000円 / 清掃費:38500円 / エアコン清掃費:11000円
《その他月額費用》-
備考
《その他》指定保証会社利用必須※一部法人契約除く敷金積み増し、ペット飼育の場合:敷金2ヶ月、ペット飼育時使用細則遵守・小型犬又は猫1匹迄、解約予告2ヶ月前、解約時室内及びエアコンクリーニング費用借主負担、楽器演奏不可、付随設備に関する費用・空き状況等は要確認
※現状と異なる場合は、現状を優先させていただきます。取引態様の欄に「媒介」と表示された物件は「仲介物件」です。ご成約の際には仲介手数料を申し受けます。