18.7万円
1R
種別 マンション
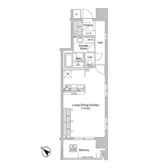
専有面積 40.37㎡
おすすめ
ポイント
神保町駅徒歩3分の地上12階建てマンションです
コンフォリア神田神保町は2005年築のおすすめマンションです!1Rタイプ(40.37㎡)の広々とした間取りです!
| 築年月 | 2005年7月 |
|---|---|
| 構造 | 鉄骨鉄筋コンクリート造 |
| 所在階 | 12階建ての9階 |
| 向き | 南西 |
| バルコニー面積 | - |
| 駐車場 | なし |
| 入居可能日 | 2026年1月31日予定 |
| 賃貸借の種類 | 普通賃貸借 |
| 契約期間 | 2年 |
| 共益費・管理費 | 10,000円 |
| 敷金 | 18.7万円 |
| 礼金 | - |
| 保証金 | - |
| 償却金 | - |
| 更新料 | 更新後賃料:1ヶ月 |
| 保証料等 | 要加入(2年16550円) |
| 保証会社補足 | エポスカード(RP) 保証料:賃料等の50%(最低2万)、月額保証料:賃料等の1%(更新料無) |
| 取引態様 | 媒介 |
| 情報更新日 | 2025年11月30日 |
| 次回更新予定日 | 2025年12月6日 |
設備・特記
《設備》フローリング/システムキッチン/エレベータ/宅配ボックス/駐輪場/常時ゴミ出し可能/その他インターネット/オートロック/TVモニター付きインターホン/エアコン/バス・トイレ別/追い焚き風呂
《物件の特徴》ペット相談可
《その他一時金》鍵交換代:33000円 / 清掃費:39600円 / エアコン清掃費:11000円
《その他月額費用》-
備考
※現状と異なる場合は、現状を優先させていただきます。取引態様の欄に「媒介」と表示された物件は「仲介物件」です。ご成約の際には仲介手数料を申し受けます。