15.6万円
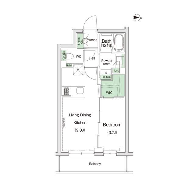
1LDK
種別 マンション
専有面積 34.20㎡
おすすめ
ポイント
池上駅徒歩7分の地上5階建てマンションです
スタイリオ池上WeLLは2024年築のきれいなマンションです! 1LDKタイプ(34.2㎡)単身者様に適した間取りです!
築年月 | 2024年1月 |
---|---|
構造 | 鉄筋コンクリート造 |
所在階 | 5階建ての2階 |
向き | 東 |
バルコニー面積 | - |
駐車場 | なし |
入居可能日 | 相談 |
賃貸借の種類 | 普通賃貸借 |
契約期間 | 2年 |
共益費・管理費 | 12,000円 |
敷金 | 15.6万円 |
礼金 | - |
保証金 | - |
償却金 | - |
更新料 | 更新後賃料:1ヶ月 |
保証料等 | 要加入(2年16550円) |
保証会社補足 | あんしんQ−Rent 初回保証料:賃料等の50%(最低2万)、月次保証料:賃料等の1% |
取引態様 | 媒介 |
情報更新日 | 2025年10月6日 |
次回更新予定日 | 2025年10月12日 |
設備・特記
《設備》室内洗濯機置場/ウォークインクロゼット/バス・トイレ別/追い焚き風呂/独立洗面台/温水洗浄便座/エアコン/オートロック/防犯カメラ/インターネット無料/その他インターネット/エレベータ/宅配ボックス/駐輪場/常時ゴミ出し可能/バイク置場
《物件の特徴》フリーレント2ヶ月 賃料のみ※2年未満解約時賃料2ヶ月違約金
《その他一時金》清掃費:44000円 / エアコン清掃費:11000円
《その他月額費用》-
備考
《フリーレント》あり:2ヶ月
《その他》■一部法人、保証会社未利用時敷金1ヶ月積み増し■ペット飼育不可、楽器演奏不可、事務所・SOHO利用不可■礼金0ヶ月※1年以内解約時賃料1ヶ月分違約金有■フリーレント3ヶ月※賃料のみ、1年以内解約時賃料3ヶ月分違約金有■屋上テラス6〜22時、ワークスペース7時〜22時の間で利用可能
※現状と異なる場合は、現状を優先させていただきます。取引態様の欄に「媒介」と表示された物件は「仲介物件」です。ご成約の際には仲介手数料を申し受けます。