11.9万円
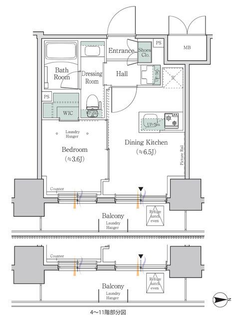
1DK
種別 マンション
専有面積 25.39㎡
おすすめ
ポイント
板橋区役所前駅徒歩5分の地上12階建てマンションです
ワンルーフレジデンス板橋大山は2023年築のきれいなマンションです! 1DKタイプ(25.39㎡)の単身者様向けの間取りです!
| 築年月 | 2023年12月 |
|---|---|
| 構造 | 鉄筋コンクリート造 |
| 所在階 | 12階建ての2階 |
| 向き | 東 |
| バルコニー面積 | 5.00㎡ |
| 駐車場 | なし |
| 入居可能日 | 2026年4月21日予定 |
| 賃貸借の種類 | 定期賃貸借 |
| 契約期間 | 2年 |
| 共益費・管理費 | 12,000円 |
| 敷金 | 11.9万円 |
| 礼金 | - |
| 保証金 | - |
| 償却金 | - |
| 更新料 | - |
| 保証料等 | 要加入 |
| 保証会社補足 | 初回保証委託料(最低15,000円):月額賃料等の50%、 2年目以降:10,000円/年 |
| 取引態様 | 媒介 |
| 情報更新日 | 2026年2月11日 |
| 次回更新予定日 | 2026年2月18日 |
設備・特記
《設備》BSアンテナ/CSアンテナ/エレベータ/宅配ボックス/敷地内ごみ置き場/バイク置場/システムキッチン/フローリング/バルコニー/室内洗濯機置場/ウォークインクロゼット/バス・トイレ別/浴室乾燥機/独立洗面台/エアコン/オートロック
《物件の特徴》ペット相談可/事務所利用不可
《その他一時金》室内清掃費:44000円 / 鍵交換費:22000円
《その他月額費用》口座振替事務手数料:220円/月
備考
※現状と異なる場合は、現状を優先させていただきます。取引態様の欄に「媒介」と表示された物件は「仲介物件」です。ご成約の際には仲介手数料を申し受けます。