27.9万円
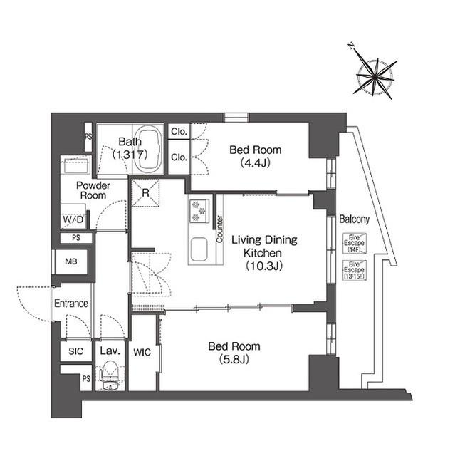
2LDK
種別 マンション
専有面積 51.12㎡
おすすめ
ポイント
大井町駅徒歩11分の地上15階建てマンションです
コンフォリア東大井Ⅱは2024年築のきれいなマンションです! 2LDK(51.12㎡)ご夫婦やファミリー向けの間取りです。
| 築年月 | 2024年3月 |
|---|---|
| 構造 | 鉄筋コンクリート造 |
| 所在階 | 15階建ての13階 |
| 向き | 南東 |
| バルコニー面積 | - |
| 駐車場 | なし |
| 入居可能日 | 2025年11月30日予定 |
| 賃貸借の種類 | 普通賃貸借 |
| 契約期間 | 2年 |
| 共益費・管理費 | 15,000円 |
| 敷金 | 27.9万円 |
| 礼金 | - |
| 保証金 | - |
| 償却金 | - |
| 更新料 | 更新後賃料:1ヶ月 |
| 保証料等 | 要加入(2年16550円) |
| 保証会社補足 | エポスカード(RP) 保証料:賃料等の50%(最低2万)、月額保証料:賃料等の1%(更新料無) |
| 取引態様 | 媒介 |
| 情報更新日 | 2025年11月27日 |
| 次回更新予定日 | 2025年12月3日 |
設備・特記
《設備》エレベータ/宅配ボックス/駐輪場/常時ゴミ出し可能/バイク置場/インターネット無料/その他インターネット/オートロック/防犯カメラ/エアコン/床暖房/バス・トイレ別/追い焚き風呂/独立洗面台/温水洗浄便座/フローリング/室内洗濯機置場/ウォークインクロゼット/システムキッチン
《物件の特徴》ペット相談可
《その他一時金》鍵交換代:33000円 / 清掃費:52800円 / エアコン清掃費:33000円
《その他月額費用》-
備考
《その他》指定保証会社利用必須※一部法人契約除く・敷金積増1ヶ月◆礼金0ヶ月※1年以内解約時賃料等1ヶ月分違約金有◆退居時、エアコン清掃費・室内清掃費かかります◆楽器演奏、SOHO利用不可◆ペット飼育時敷金1ヶ月積増・使用細則遵守・小型犬1匹もしくは猫2匹まで◆置き配サービス
※現状と異なる場合は、現状を優先させていただきます。取引態様の欄に「媒介」と表示された物件は「仲介物件」です。ご成約の際には仲介手数料を申し受けます。