14.8万円
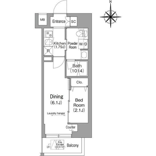
1DK
種別 マンション
専有面積 25.22㎡
おすすめ
ポイント
椎名町駅徒歩9分の地上10階建てマンションです
コンフォリア・リヴ下落合は2024年築のきれいなマンションです! 1DKタイプ(25.22㎡)の単身者様向けの間取りです!
築年月 | 2024年11月 |
---|---|
構造 | 鉄筋コンクリート造 |
所在階 | 10階建ての9階 |
向き | 南 |
バルコニー面積 | - |
駐車場 | なし |
入居可能日 | 相談 |
賃貸借の種類 | 普通賃貸借 |
契約期間 | 2年 |
共益費・管理費 | 6,000円 |
敷金 | 14.8万円 |
礼金 | - |
保証金 | - |
償却金 | - |
更新料 | 更新後賃料:1ヶ月 |
保証料等 | 要加入(2年16550円) |
保証会社補足 | エポスカード(RP) 保証料:賃料等の50%(最低2万)、月額保証料:賃料等の1%(更新料無) |
取引態様 | 媒介 |
情報更新日 | 2025年10月6日 |
次回更新予定日 | 2025年10月12日 |
設備・特記
《設備》フローリング/室内洗濯機置場/バス・トイレ別/浴室乾燥機/独立洗面台/温水洗浄便座/エアコン/オートロック/TVモニター付きインターホン/防犯カメラ/インターネット無料/エレベータ/宅配ボックス/駐輪場/常時ゴミ出し可能
《その他一時金》鍵交換代:33000円 / 清掃費:38500円 / エアコン清掃費:11000円
《その他月額費用》-
備考
《その他》指定保証会社利用必須※一部法人契約除く敷金積増1ヶ月◆礼金0ヶ月※2年未満解約時賃料1ヶ月分違約金有◆退居時、エアコン清掃費・室内清掃費かかります◆楽器演奏、SOHO利用不可◆ペット飼育時敷金1ヶ月積増・使用細則遵守・小型犬1匹又は猫2匹迄◆フリーレント1ヶ月(賃料のみ)※2025年1月末迄の申込迄※2年未満解約時賃料1ヶ月分違約金有
※現状と異なる場合は、現状を優先させていただきます。取引態様の欄に「媒介」と表示された物件は「仲介物件」です。ご成約の際には仲介手数料を申し受けます。