14.5万円
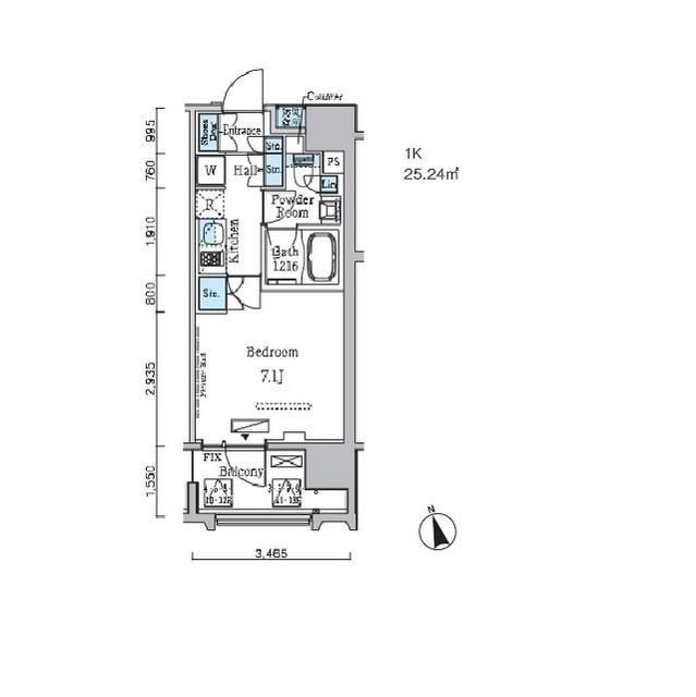
1K
種別 マンション
専有面積 25.24㎡
おすすめ
ポイント
新富町駅徒歩6分の地上13階建てマンションです
プライマル中央MINATOは2022年築のきれいなマンションです! 1Kタイプ(25.24㎡)の単身者様向けの間取りです!
| 築年月 | 2022年11月 |
|---|---|
| 構造 | 鉄筋コンクリート造 |
| 所在階 | 13階建ての12階 |
| 向き | 南 |
| バルコニー面積 | - |
| 駐車場 | なし |
| 入居可能日 | 2026年1月31日予定 |
| 賃貸借の種類 | 普通賃貸借 |
| 契約期間 | 2年 |
| 共益費・管理費 | 15,000円 |
| 敷金 | 14.5万円 |
| 礼金 | 145,000円 |
| 保証金 | - |
| 償却金 | - |
| 更新料 | 更新後賃料:1ヶ月 |
| 保証料等 | 要加入(2年16550円) |
| 保証会社補足 | エポスカード(RP) 保証料:賃料等の50%(最低2万)、月額保証料:賃料等の1%(更新料無) |
| 取引態様 | 媒介 |
| 情報更新日 | 2025年12月16日 |
| 次回更新予定日 | 2025年12月22日 |
設備・特記
《設備》エアコン/オートロック/防犯カメラ/インターネット無料/CATV/エレベータ/宅配ボックス/駐輪場/常時ゴミ出し可能
《物件の特徴》ペット相談可/コンビニ近く
《その他一時金》鍵交換代:22000円 / 清掃費:38500円 / エアコン清掃費:11000円
《その他月額費用》-
備考
《その他》法人契約等保証会社利用不可の場合:敷金1か月積増 付随設備に関する費用・空き状況等は要確認、退居時エアコン清掃費・室内清掃費がかかります。 ペット飼育可能※小型犬もしくは猫1匹まで(敷金1ヶ月積増)鍵交換代22,000円(税込)EV使用制限有:ノンタッチキーにて使用制限解除
※現状と異なる場合は、現状を優先させていただきます。取引態様の欄に「媒介」と表示された物件は「仲介物件」です。ご成約の際には仲介手数料を申し受けます。