17.3万円
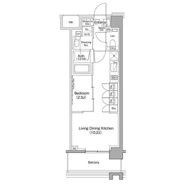
1LDK
種別 マンション
専有面積 32.38㎡
おすすめ
ポイント
こだわりで選びたい方におすすめ。品川区エリアで住まいをお探しなら「ヴェール・クレール大崎」。浴室や洗
築年月 | 2023年1月 |
---|---|
構造 | 鉄筋コンクリート造 |
所在階 | 9階建ての3階 |
向き | 南東 |
バルコニー面積 | 5.76㎡ |
駐車場 | なし |
入居可能日 | 2025年10月31日予定 |
賃貸借の種類 | 普通賃貸借 |
契約期間 | 2年 |
共益費・管理費 | 10,000円 |
敷金 | 17.3万円 |
礼金 | 173,000円 |
保証金 | - |
償却金 | - |
更新料 | 173,000円 |
保証料等 | 要加入 |
保証会社補足 | 初年度保証料:賃料等合計額の50% 2年目以降:1年毎1万円(個人) |
取引態様 | 媒介 |
情報更新日 | 2025年10月2日 |
次回更新予定日 | 2025年10月5日 |
設備・特記
《設備》エアコン/バス・トイレ別/浴室乾燥機/追い焚き風呂/温水洗浄便座/シャワー/フローリング/バルコニー/室内洗濯機置場/シューズIC/ガスコンロ(2口)/エレベータ/宅配ボックス/キッズルーム/インターネット対応/BSアンテナ/CSアンテナ/オートロック/TVモニター付きインターホン
《物件の特徴》ペット相談可/楽器不可
《その他一時金》-
《その他月額費用》-
備考
《その他》セキュリティ面は、オートロック・TVインターホンなど充実しているので安心して生活できます。浴室を乾燥させることでカビの繁殖を防ぐことに役立つ浴室乾燥機を設置しています。住みやすいお部屋をお探しなら、戸越周辺でお求めください。お部屋の詳細情報などは、03-5909-5601またはinfo@sk-com.jpよりお問い合わせください。
※現状と異なる場合は、現状を優先させていただきます。取引態様の欄に「媒介」と表示された物件は「仲介物件」です。ご成約の際には仲介手数料を申し受けます。