10.7万円
2K
種別 マンション
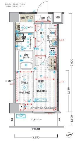
専有面積 25.46㎡
おすすめ
ポイント
オートロック付き物件には部外者が無断で立ち入る事がない安心感があります。留守中に注文した商品が届く
| 築年月 | 2025年6月 |
|---|---|
| 構造 | 鉄筋コンクリート造 |
| 所在階 | 5階建ての2階 |
| 向き | - |
| バルコニー面積 | - |
| 駐車場 | なし |
| 入居可能日 | 相談 |
| 賃貸借の種類 | 普通賃貸借 |
| 契約期間 | 2年 |
| 共益費・管理費 | 11,000円 |
| 敷金 | - |
| 礼金 | - |
| 保証金 | - |
| 償却金 | - |
| 更新料 | 更新前賃料:1ヶ月 |
| 保証料等 | 要加入 |
| 保証会社補足 | 初回保証委託料:月額総支払額の50%、年間保証料12,000円 ミライズインシュア/日本セーフティ/ルームバンクインシュア:初回保証料:月額総支払額の50%、年間保証料12,000円がかかります。 |
| 取引態様 | 媒介 |
| 情報更新日 | 2025年10月23日 |
| 次回更新予定日 | 2025年10月27日 |
設備・特記
《設備》オートロック/エアコン/バス・トイレ別/浴室乾燥機/独立洗面台/温水洗浄便座/トイレ/室内洗濯機置場/クローゼット/システムキッチン/ガスコンロ(2口)/分譲マンションタイプ/宅配ボックス/都市ガス/公営水道/下水/インターネット対応
《物件の特徴》新築/ペット相談可/楽器不可/二人入居可/事務所利用不可/保証人不要
《その他一時金》-
《その他月額費用》-
備考
《その他》エントランスのオートロックと玄関の鍵で二重にロックできるので防犯対策につながります。留守中に注文した商品が届くので、配送時間を気にせず注文ができる宅配ボックスがあります。室内設備は浴室乾燥機・洗面所独立など大変充実しております。ピタットハウス新宿西口店へのお問い合わせは03-5909-5601へご連絡お願いします。当社スタッフがお客様の住まい探しをサポート致します。
※現状と異なる場合は、現状を優先させていただきます。取引態様の欄に「媒介」と表示された物件は「仲介物件」です。ご成約の際には仲介手数料を申し受けます。