12.7万円
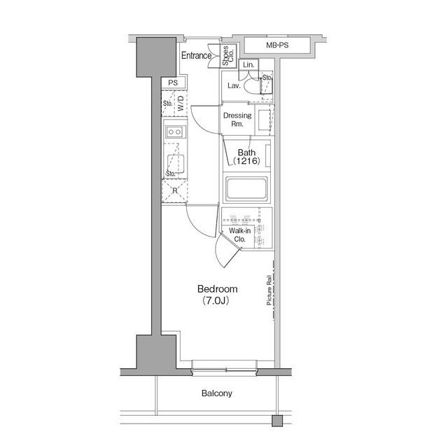
1K
種別 マンション
専有面積 25.19㎡
おすすめ
ポイント
オートロック機能が付いているのでドアの前まで知らない人が入って来る危険が減り、安心して暮らせます。共
築年月 | 2019年2月 |
---|---|
構造 | 鉄筋コンクリート造 |
所在階 | 15階建ての9階 |
向き | 北 |
バルコニー面積 | 3.66㎡ |
駐車場 | 有り 月額44,000円 |
入居可能日 | 2025年10月20日予定 |
賃貸借の種類 | 普通賃貸借 |
契約期間 | 2年 |
共益費・管理費 | 15,000円 |
敷金 | 12.7万円 |
礼金 | - |
保証金 | - |
償却金 | - |
更新料 | 127,000円 |
保証料等 | 要加入 |
保証会社補足 | 初年度保証料:賃料等合計額の50%(最低保証料2万円)2年目以降:1年毎1万円 |
取引態様 | 媒介 |
情報更新日 | 2025年10月12日 |
次回更新予定日 | 2025年10月17日 |
設備・特記
《設備》エレベータ/宅配ボックス/敷地内駐車場/キッズルーム/BSアンテナ/オートロック/防犯カメラ
《物件の特徴》ペット相談可/ピアノ相談可/事務所使用可/フリーレント1ヶ月
《その他一時金》-
《その他月額費用》-
備考
《フリーレント》あり:1ヶ月
《その他》ぜひ一度見ていただきたい、「ザ・パークハビオ木場」です。エントランス・玄関と2つのロックで守られているので防犯対策につながるオートロック機能が付いております。引越し時の負担を軽減する嬉しいフリーレントのお住まい。新生活を江東区でスタートするなら、当社スタッフが住まい探しをサポートいたします。03-5909-5601またはinfo@sk-com.jpからご連絡ください。
※現状と異なる場合は、現状を優先させていただきます。取引態様の欄に「媒介」と表示された物件は「仲介物件」です。ご成約の際には仲介手数料を申し受けます。