15万円
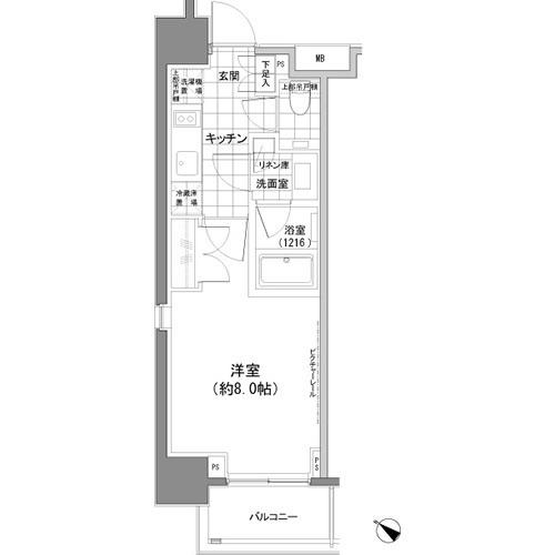
1K
種別 マンション
専有面積 26.06㎡
おすすめ
ポイント
防犯対策をしっかりしたいならオートロック付きの物件がおすすめです。共用部には宅配ボックスが付いてい
| 築年月 | 2011年1月 |
|---|---|
| 構造 | 鉄筋コンクリート造 |
| 所在階 | 12階建ての3階 |
| 向き | 南西 |
| バルコニー面積 | 3.25㎡ |
| 駐車場 | 有り 月額49,500円 |
| 入居可能日 | 2025年12月31日予定 |
| 賃貸借の種類 | 普通賃貸借 |
| 契約期間 | 2年 |
| 共益費・管理費 | 8,000円 |
| 敷金 | 15万円 |
| 礼金 | 150,000円 |
| 保証金 | - |
| 償却金 | - |
| 更新料 | 150,000円 |
| 保証料等 | 要加入 |
| 保証会社補足 | 初年度保証料:賃料等合計額の30%(最低保証料1.2万円)2年目以降:1年毎1万円 |
| 取引態様 | 媒介 |
| 情報更新日 | 2025年11月24日 |
| 次回更新予定日 | 2025年11月29日 |
設備・特記
《設備》フローリング/バス・トイレ別/浴室乾燥機/追い焚き風呂/温水洗浄便座/エアコン/オートロック/防犯カメラ/インターネット対応/角部屋/エレベータ/宅配ボックス/敷地内駐車場/キッズルーム/システムキッチン/ガスコンロ
《物件の特徴》ペット相談可/ピアノ相談可/事務所使用可
《その他一時金》鍵交換費用:33000円
《その他月額費用》-
備考
《その他》新生活を失敗せず、スタートさせたいならこちらの「パークハビオ人形町」はいかがでしょうか。オートロック付きなので、安心して暮らすことができます。簡単に温度管理できるエアコン付きの物件。エレベーター付き物件です。小伝馬町近くでお部屋を求めるなら、03-5909-5601またはinfo@sk-com.jpまでご連絡下さい。素敵なお部屋をご紹介させていただきます。
※現状と異なる場合は、現状を優先させていただきます。取引態様の欄に「媒介」と表示された物件は「仲介物件」です。ご成約の際には仲介手数料を申し受けます。