13.6万円
1K
種別 マンション
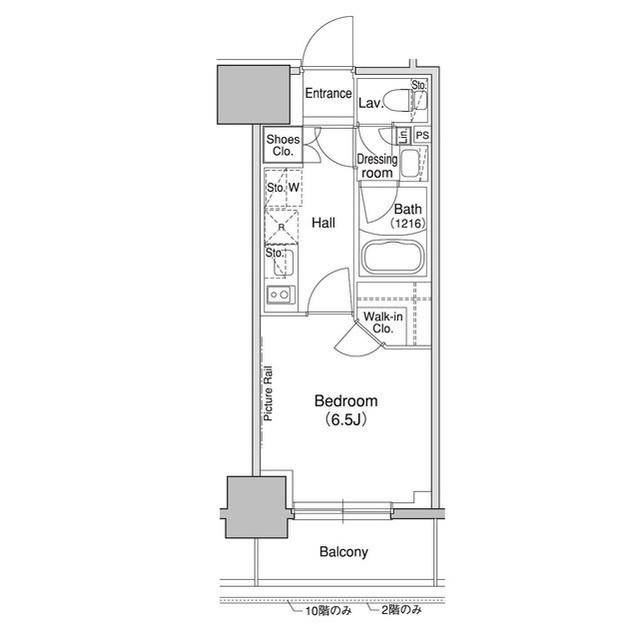
専有面積 25.28㎡
おすすめ
ポイント
こだわりで選びたい方におすすめ。杉並区エリアで住まいをお探しなら「ブリリアンクラス高円寺」。外干し
| 築年月 | 2023年8月 |
|---|---|
| 構造 | 鉄筋コンクリート造 |
| 所在階 | 13階建ての12階 |
| 向き | 西 |
| バルコニー面積 | 4.48㎡ |
| 駐車場 | なし |
| 入居可能日 | 2025年12月31日予定 |
| 賃貸借の種類 | 普通賃貸借 |
| 契約期間 | 2年 |
| 共益費・管理費 | 10,000円 |
| 敷金 | 13.6万円 |
| 礼金 | 136,000円 |
| 保証金 | - |
| 償却金 | - |
| 更新料 | 136,000円 |
| 保証料等 | 要加入 |
| 保証会社補足 | SBIギャランティ 初年度保証料:賃料等合計額の40%(最低保証料2万円)2年目以降:1年毎8千円 |
| 取引態様 | 媒介 |
| 情報更新日 | 2025年12月19日 |
| 次回更新予定日 | 2025年12月24日 |
設備・特記
《設備》エアコン/オートロック/TVモニター付きインターホン/防犯カメラ/インターネット対応/BSアンテナ/CSアンテナ/エレベータ/宅配ボックス/キッズルーム/ガスコンロ(2口)/フローリング/バルコニー/室内洗濯機置場/ウォークインクロゼット/バス・トイレ別/浴室乾燥機/追い焚き風呂/温水洗浄便座/シャワー
《物件の特徴》ペット相談可/ピアノ相談可
《その他一時金》鍵交換費用:33000円
《その他月額費用》-
備考
《その他》共用部には宅配ボックスが備え付けられているため、急なお出かけや不在の際にも荷物を受け取ることができます。浴室を乾燥させることでカビの繁殖を防ぐことに役立つ浴室乾燥機を設置しています。寒い季節も安心の追い焚き機能付きです。新生活へ心弾ませるアナタ。お部屋探しならピタットハウス新宿西口店へお任せ下さい。03-5909-5601/info@sk-com.jpからのお問い合わせをお待ちしております。
※現状と異なる場合は、現状を優先させていただきます。取引態様の欄に「媒介」と表示された物件は「仲介物件」です。ご成約の際には仲介手数料を申し受けます。