9.5万円
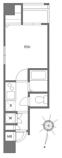
1K
種別 マンション
専有面積 20.37㎡
おすすめ
ポイント
こだわりで選びたい方におすすめ。墨田区エリアで住まいをお探しなら「ルリオン両国」。共用部には宅配ボッ
| 築年月 | 2009年3月 |
|---|---|
| 構造 | 鉄骨鉄筋コンクリート造 |
| 所在階 | 11階建ての5階 |
| 向き | 南 |
| バルコニー面積 | - |
| 駐車場 | なし |
| 入居可能日 | 相談 |
| 賃貸借の種類 | 普通賃貸借 |
| 契約期間 | 2年 |
| 共益費・管理費 | 12,000円 |
| 敷金 | 9.5万円 |
| 礼金 | 95,000円 |
| 保証金 | - |
| 償却金 | - |
| 更新料 | 更新前賃料:1.5ヶ月 |
| 保証料等 | 要加入 |
| 保証会社補足 | ※CASAからの審査になります。 【CASA】月額総賃料の70%(最低保証料20,000円)/月次保証料、月額総賃料の1.5% 【アーク賃貸保証】月額総賃料の40%/次年度以降10,000円※引落し |
| 取引態様 | 媒介 |
| 情報更新日 | 2025年12月26日 |
| 次回更新予定日 | 2025年12月31日 |
設備・特記
《設備》システムキッチン/ガスコンロ(2口)/角部屋/分譲マンションタイプ/エレベータ/宅配ボックス/駐輪場/都市ガス/デザイナーズ/公営水道/下水/インターネット対応/オートロック/TVモニター付きインターホン/防犯カメラ/エアコン/バス・トイレ別/浴室乾燥機/温水洗浄便座/シャワー/トイレ/フローリング/バルコニー/室内洗濯機置場/下駄箱/クローゼット
《物件の特徴》ペット相談可/楽器不可/事務所利用不可
《その他一時金》プレミアデスク(税込/2年):22000円 / 鍵交換費用:38500円
《その他月額費用》-
備考
《その他》浴室や洗濯物からスピーディーに湿気を除去してカビの発生を防げる、浴室乾燥機が付いています。共用部には宅配ボックスが備え付けられているため、急なお出かけや不在の際にも荷物を受け取ることができます。家賃を10万円以下に抑えることができます。墨田区へお引越しをご予定なら、info@sk-com.jpからご連絡ください。03-5909-5601から当社にお電話いただくことも可能です。
※現状と異なる場合は、現状を優先させていただきます。取引態様の欄に「媒介」と表示された物件は「仲介物件」です。ご成約の際には仲介手数料を申し受けます。